NEUVILLE SUR SAONE - T3 EN REZ-DE-JARDIN AVEC GARAGE DOUBLE
Neuville-sur-Saône 69250
0
Honoraires à la charge du vendeur.
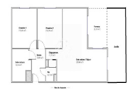
A quelques minutes à pied du centre de Neuville-Sur-Saône et ses jolis commerces, dans une copropriété sécurisée et à taille humaine construite en 2023, venez découvrir ce joli T3 de 66,90 m² en rez-de-jardin. Au calme et en retrait de la rue, il se compose d'une entrée, une belle pièce de vie avec une cuisine haut de gamme de la marque BERNOLLIN entièrement équipée et donnant sur une terrasse et un jardin, idéal pour profiter des beaux jours ! La partie nuit se compose de deux chambres de belle taille, d'une salle de bains et d'un WC séparé. Un double garage (non boxé) est proposé en sus. La résidence se situe dans un quartier résidentiel, tout en étant à 10 minutes à pied du centre de Neuville. Des écoles (de la maternelle au lycée) sont implantées à moins de 10 minutes à pied, tout comme une crèche. Côté transports, on trouve six lignes de bus ainsi que la gare Albigny-Neuville à 10 min à pied, reliant La Part-Dieu en 10 minutes ! Egalement, la future ligne BHNS passera à 5 min à pied. Prix de vente du bien : 325 000 honoraires d'agence inclus à la charge du vendeur. DPE (C) GES (C) Appartement soumis au régime de la copropriété. Pas de procédure en cours. Charges mensuelles : 85 Taxe foncière : 799 Les informations sur les risques auxquels ce bien est exposé sont disponibles sur le site Géorisques : www.georisques.gouv.fr Contactez Margaux GUIGNABAUDET margaux@cesaretbrutus.com 07 70 45 62 87 Agent commercial indépendant RSAC n° 819 206 160
Honoraires à la charge du vendeur. Dans une copropriété de 74 lots. Quote-part moyenne du budget prévisionnel 1 012 /an. Aucune procédure n'est en cours. Classe énergie B, Classe climat C. Montant moyen estimé des dépenses annuelles d'énergie pour un usage standard, établi à partir des prix de l'énergie de l'année 2025 : 369.00 . Date de réalisation du DPE : 28-11-2013. Les informations sur les risques auxquels ce bien est exposé sont disponibles sur le site Géorisques : georisques.gouv.fr.