Honoraires à la charge de l'acquéreur (Prix hors honoraires : 1500000 euros).
Sous compromis : NICE CARRÉ D'OR - GRIMALDI : Nous vous proposons un superbe appartement 5 pièces, traversant Est/ Ouest situé au 6ème étage (seul sur le palier) d'un immeuble de standing avec gardien et réceptionniste. Il est idéalement placé rue Maccarani. Au calme et à deux pas de toutes les commodités et de la mer.
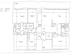
D'une surface de 147m² loi carrez, ce bien est composé d'un séjour de 50m² ouvrant sur une belle terrasse de 32m², d'une cuisine indépendante entièrement équipée avec balcon, d'une chambre parentale avec salle de douche (23.50M²) et sa terrasse. Un espace nuit avec trois autres chambres, une salle de bain avec wc, un wc invité, un dressing et de nombreux placards agrémentent ce bien d'exception.
Accompagné d'un parking en sous sol et d'une cave.
Vous profiterez d'une jolie vue sur la ville et les collines coté Est, ainsi que du calme et de la verdure sur son orientation Ouest.
Ne tardez pas à venir le découvrir!
Dans une copropriété de 275 lots. Aucune procédure n'est en cours. Classe énergie C, Classe climat A Montant moyen estimé des dépenses annuelles d'énergie pour un usage standard, établi à partir des prix de l'énergie de l'année 2021 : entre 1905.90 et 1905.90 . Les informations sur les risques auxquels ce bien est exposé sont disponibles sur le site Géorisques : georisques.gouv.fr.