Nice Ecovallée, 2 pièces Avant Dernier Etage avec Terrasse, Pa
Nice 06200
0
Honoraires à la charge de l'acquéreur (Prix hors honoraires : 298500 euros).
Les charges de location sont prévisionnelles mensuelles avec régularisation annuelle.
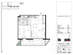
Situé à l'avant dernier étage de cet emblématique résidence du nouveau quartier de l'Écovallée doté de tous les commerces de proximités et transports, superbe appartement 2 pièces prolongé de sa terrasse en exposition sud.
Il se compose d'une entrée desservant un spacieux séjour avec cuisine américaine de plus de 27 m² s'ouvrant par une grande baie vitrée sur sa terrasse, d'une grande chambre à coucher attenante s'ouvrant également sur la terrasse ainsi que d'une salle d'eau avec WC.
Cet appartement dispose également d'un parking en sous-sol inclus dans le prix.
Les informations sur les risques auxquels ce bien est exposé sont disponibles sur le site Géorisques http://georisques.gouv.fr
Non soumis au DPE. Les informations sur les risques auxquels ce bien est exposé sont disponibles sur le site Géorisques : georisques.gouv.fr. Ce bien vous est proposé par un agent commercial (Entreprise individuelle).
Votre conseiller By Blue Sophia : Florent RAICHLE Agent commercial (Entreprise individuelle) RSAC 52215949000013 NICE