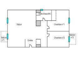
Situé rue de l'Abbé Grégoire, au 2? étage d'une petite copropriété, cet appartement 3 pièces de 54,77 m² vous séduira par sa rénovation complète réalisée avec des matériaux de qualité.
Traversant Est-Ouest, il se compose d'une entrée avec rangements, d'une cuisine aménagée et équipée ouverte sur un séjour lumineux, de deux chambres avec placards intégrés, d'une salle de douche avec WC et fenêtre, ainsi que d'un grand dressing indépendant.
Les prestations sont au rendez-vous : double vitrage, climatisation, aucuns travaux à prévoir, il ne vous reste plus qu'à poser vos valises !
Faibles charges ? Idéal pour un premier achat ou un investissement locatif clé en main.
7-Lots
Charges annuelles : 1044€
Estimation des coûts annuels d'énergie du logement entre 607€ et 821€ par an.
Les informations sur les risques auxquels ce bien est exposé sont disponibles sur le site Géorisques : georisques.gouv.fr
Les informations sur les risques auxquels ce bien est exposé sont disponibles sur le site Géorisques : www. georisques. gouv. fr
54 m²
4 056 €
26 m²
3
2
1
1
2 sur 3
Ouest
Consommations énergétiques
Logement économe
123
Logement énergivore (kWhEP/m2/an)
Émissions de gaz à effet de serre
Faible émission de GES
3
Forte émission de GES(kgeqCO2/m2/an)
Contact Barbara ALBERGANTI
Contacter gratuitement à l'aide du formulaire ci-dessous.