Les charges de location sont prévisionnelles mensuelles avec régularisation annuelle.
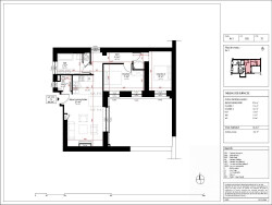
Situé dans le quartier résidentiel des musiciens, à deux pas du boulevard Victor Hugo, dans un très bel immeuble de 1897 entièrement réhabilité, appartement 3 pièces entièrement rénové.
Cet appartement est rénové avec des matériaux de qualités qui s'accordent à l'architecture et l'époque des lieux. La cuisine et salle d'eau allient l'élégance naturelle au travers des faïences vernies et des plans de travail, sublimées par des poignées et de la robinetterie effet cuivre satiné. Les sols de ces pièces ont été revêtus de carrelage aux teintes naturelles. Dans les autres pièces, le parquet authentique a été poncé et vitrifié.
Il se compose d'une entrée avec toilettes invités desservant un spacieux séjour avec cuisine américaine, de deux chambres à coucher et d'une salle de bains avec baignoire et double vasque.
Les informations sur les risques auxquels ce bien est exposé sont disponibles sur le site Géorisques http://georisques.gouv.fr
Honoraires à la charge du vendeur. Non soumis au DPE. Les informations sur les risques auxquels ce bien est exposé sont disponibles sur le site Géorisques : georisques.gouv.fr. Ce bien vous est proposé par un agent commercial (Entreprise individuelle).
Votre conseiller By Blue Sophia : Florent RAICHLE Agent commercial (Entreprise individuelle) RSAC 52215949000013 NICE