Les charges de location sont prévisionnelles mensuelles avec régularisation annuelle.
La part des honoraires pour la réalisation de létat des lieux de ce bien est de 243.24 euros.
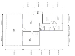
NICE OUEST Bellet :Confortable 3 Pièces (81m2) bénéficiant d'une Exceptionnelle Terrasse (50m2), Quatre Expositions, Vues Dégagées Mer, Château Crémat et Collines, Excellent Etat, Double Vitrage, 2 chambres dont une avec placard, 1 Salle de Bains avec fenêtre, Dressing, 1 WC indépendant avec fenêtre également, Spacieux Séjour 29m2 et immense Cuisine Indépendante (18m2) avec cellier, les deux pièces ouvrent sur la Terrasse en Plein Soleil, 1er et Dernier Etage (sans ascenseur) d'une Maison Niçoise, PARKING PRIVATIF, Classe Energie D (estimation des coûts annuels d'énergie du logement entre 930 EUR et 1 310 EUR par an, prix moyens des énergies indexés au 1er janvier 2021 abonnements compris), Disponible le 12/01/2026. Loyer HC 1.343.69EUR + 16.31EUR Ordures Ménagères /! tout individuel électrique pour chauffage et eau chaude, eau froide en individuel également. Gestion Locative sous Garantie des Loyers, Revenus Titulaires du Bail supérieurs à 4.121EUR CDI Nets Mensuels période d' essai purgée (Acte de Caution Solidaire non accepté), /! Honoraires Location règlementés 10EUR TTC/m2 + état des lieux 3EUR TTC/m2 soit au total 1.053,13EUR TTC, Dépôt Garantie 1 mois HC soit 1.343.69EUR, Montez un dossier de canditat locataire en béton pour trouver le logement de vos rêves sur https://www.dossierfacile.logement.gouv.fr (DossierFacile vous aide à constituer un dossier de location numérique de qualité pour mettre toutes les chances de votre côté) ou privilégiez un contact par email en nous adressant : Pièce Identité, Attestation Employeur CDI, 3 derniers bulletins salaire, avis imposition sur claire@midem-immobilier.com EXCLUSIVITE MIDEM Nice Ouest Immobilier 04.93.725.919 Les informations sur les risques auxquels ce bien est exposé sont disponibles sur le site Géorisques : www.georisques.gouv.fr
81.08 m²
1 m²
29 m²
3
2
1
1
1 sur 1
1054.04 %
16.31 € / mois
Sud
Ouest
1 (1 m²)
Oui
1
1
Consommations énergétiques
Logement économe
184
Logement énergivore (kWhEP/m2/an)
Émissions de gaz à effet de serre
Faible émission de GES
5
Forte émission de GES(kgeqCO2/m2/an)
Contact MIDEM Immobilier
Contacter gratuitement à l'aide du formulaire ci-dessous.