Les charges de location sont prévisionnelles mensuelles avec régularisation annuelle.
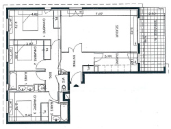
NICE OUEST Corniche Fleurie : dans Résidence Standing Sécurisée avec PISCINE, Lumineux 4 Pièces (91m2) d'Angle, en DERNIER ETAGE, Traversant, Terrasse à Ciel ouvert 13m2 avec VUE MER, Panorama Plaine du Var et Cap d'Antibes, Séjour 28m2 climatisé, Cuisine Indépendante Meublée, 3 Chambres toutes avec placard et dont une avec sa Propre Salle de Bains, 1 Salle de Bains avec fenêtre + WC Indépendant, Rangements, 1 Garage. Loyer 1759.31EUR + 260.69EUR (eau froide et Ordures Ménagères), LOCATION VIDE disponible le 25/03/2026.. Gestion Locative sous Garantie des Loyers, Revenus Titulaires du Bail Supérieurs à 6.121EUR CDI Nets Mensuels période d'essai purgée (Acte de caution solidaire non accepté), Classe Energie C, (estimation des coûts annuels d'énergie du logement entre 740EUR et 1021EUR par an, prix moyens des énergies indexés au 1er janvier 2021 abonnements compris). Honoraires Location et Etat des Lieux règlementés à la charge des locataires 13.12EUR/m2 soit 1.191.42EUR TTC, Dépôt de Garantie 1759.31EUR, Exclusivité MIDEM Nice Ouest Immobilier, 04 93 725 919. Montez un dossier de canditat locataire en béton pour trouver le logement de vos rêves sur https://www.dossierfacile.logement.gouv.fr (DossierFacile vous aide à constituer un dossier de location numérique de qualité pour mettre toutes les chances de votre côté) ou privilégiez un contact par email en nous adressant : Pièce Identité, Attestation Employeur CDI, 3 derniers bulletins salaire, avis imposition sur claire@midem-immobilier.com. EXCLUSIVITE MIDEM Nice Ouest Immobilier 04.93.725.919 Les informations sur les risques auxquels ce bien est exposé sont disponibles sur le site Géorisques : www.georisques.gouv.fr
91 m²
27 m²
4
3
2
1
2 sur 2
1191.42 %
260.69 € / mois
Est
Ouest
Oui
1
Oui
1
Oui
Oui
Oui
Oui
Consommations énergétiques
Logement économe
131
Logement énergivore (kWhEP/m2/an)
Émissions de gaz à effet de serre
Faible émission de GES
4
Forte émission de GES(kgeqCO2/m2/an)
Contact Claire VREUX
Contacter gratuitement à l'aide du formulaire ci-dessous.