Nice Riquier, 4 pièces Dernier étage avec Terrasse et Parking
Nice 06300
0
Honoraires à la charge du vendeur.
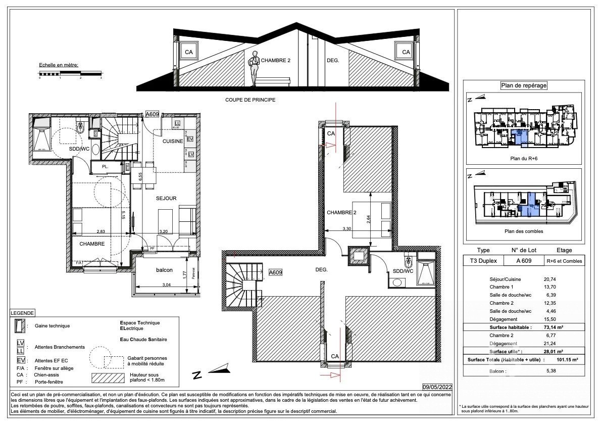
Situé à proximité de tous les commerces, à quelques pas de la gare de Riquier, au dernier étage de cette résidence contemporaine de standing avec parking en sous-sol, stationnements deux roues, local poussettes et vélos, superbe appartement 4 pièces avec terrasse prolongé de sa terrasse côté jardin. Cet appartement se compose au premier niveau d'une entrée desservant un beau séjour avec espace salle à manger et cuisine américaine s'ouvrant sur la terrasse, d'une première chambre à coucher s'ouvrant également sur la terrasse, d'une seconde chambre à coucher avec placard d'une salle d'eau et de toilettes invités. L'escalier en bois finition lasurée amène à l'étage supérieur ou un spacieux espace de 21 m² en surface utile comporte la troisième chambre à coucher ainsi qu'une salle d'eau avec toilettes. Cet appartement équipé d'un visiophone, de volets roulants électriques, de chauffage avec thermostat programmable, dispose d'un stationnement en sous-sol inclus dans le prix. Les informations sur les risques auxquels ce bien est exposé sont disponibles sur le site Géorisques http://georisques.gouv.fr
Honoraires à la charge du vendeur. Non soumis au DPE. Les informations sur les risques auxquels ce bien est exposé sont disponibles sur le site Géorisques : georisques.gouv.fr.
Votre conseiller By Blue Sophia : Florent RAICHLE Agent commercial (Entreprise individuelle) RSAC 52215949000013 NICE
78.2 m²
6 905 €
4
3
2
2
11/12/2025
2025
Est
Oui
1
Oui
1
Oui
Contact BLUE SQUARE
Contacter gratuitement à l'aide du formulaire ci-dessous.