Honoraires à la charge de l'acquéreur (Prix hors honoraires : 160000 euros).
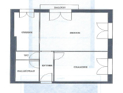
Lumineux appartement de type 2 de 36,85 m2 carrez vendu avec garage. Au dernier étage d'une petite résidence conviviale, sans ascenseur, beau deux pièces rénové avec goût. Entrée sur dégagement desservant, un vaste séjour de plus de plus de 20 m2 avec un balconet. Cuisine à l'américaine équipée. Chambre avec penderie.Salle de douche moderne (avec lave-linge). wc séparés. (double vitrage - électricité refaite en 2018) Garage privatif. Copropriété de 20 lots. Le montant moyen annuel de la quote-part, à la charge du vendeur, du budget prévisionnel correspondant aux dépenses courantes : 408.44 euros. Honoraires d'Agence Inclus: 5,63 % TTC à la charge de l'acquéreur. Prix net vendeur: 160.000 euros. Montant estimé des dépenses annuelles d'énergie pour un usage standard entre 940 et 1150 euros (Prix moyens des énergies indexés sur le tarif 2023)Logement à consommation énergétique excessive. Les informations sur les risques auxquels ce bien est exposé sont disponibles sur le site : www.georisques.gouv.fr - Annonce rédigée et publiée par un Agent Mandataire -
36.81 m²
4 591 €
1 m²
20 m²
2
1
1
1
3 sur 3
5.63 %
1956
1 (1 m²)
1
1
Oui (20 lots)
Consommations énergétiques
Logement économe
431
Logement énergivore (kWhEP/m2/an)
Émissions de gaz à effet de serre
Faible émission de GES
24
Forte émission de GES(kgeqCO2/m2/an)
Contact DESMARES Pierre-Olivier
Contacter gratuitement à l'aide du formulaire ci-dessous.