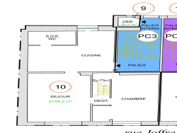
Exclusivité OPEN IMMOBILIER THIONVILLE Idéalement pour primo accédant ou investisseur? Suite à la mise en copropriété de l'immeuble situé au 25 rue Joffre à Nilvange, venez découvrir cette appartement de type F3 en duplex de 60.4m2 carrez. Celui-ci est composé d'un hall d'entrée, d'une cuisine, d'un séjour et d'une salle de bain. A l'étage: une chambre Prestations: Double vitrage, chauffage individuel Gaz et tableau électrique refait à neuf. Prévoir quelques travaux de finition. La résidence est dotée de 8 appartements Nombre de lots totales de la copropriété : 22 Charges de copropriété : Les charges annuelles s'élèvent à 480 EUR soit 120EUR par trimestre. Votre contact: OPEN IMMOBILIER THIONVILLE M. ULAS GSM: 0663177542 FIXE: 0382547357 Email: ulas@open57.fr
Duplex
60.4 m²
1 228 €
3
2
1
1
3 sur 4
Sud
Est
Oui
Oui
Oui
Contact ULAS Unal
Contacter gratuitement à l'aide du formulaire ci-dessous.