Les charges de location sont prévisionnelles mensuelles avec régularisation annuelle.
La part des honoraires pour la réalisation de létat des lieux de ce bien est de 181.44 euros.
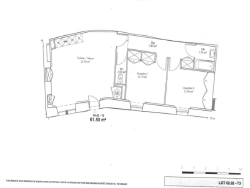
Nimes centre à proximité des halles, dans un immeuble rénové et de caractère, à louer bel appartement T3 composé d'un espace cuisine, d'une salle de bain et d'un espace nuit comprenant deux chambres. Cet appartement se trouve au deuxième et dernier étage. ATRIUM IMMOBILIER 12 Boulevard Alphonse Daudet Nimes - Location - Vente - Appartement - Studio - Villa - Terrain - Immeuble. N'hésitez pas à nous contacter au 04.66.27.07.16 pour plus d'informations et ou fixer un RDV. Les informations sur les risques auxquels ce bien est exposé sont disponibles sur le site Géorisques : www.georisques.gouv.fr
60.48 m²
3
2
1
1
2 sur 2
665.28 %
40 € / mois
1948
Oui (16 lots)
Consommations énergétiques
Logement économe
85
Logement énergivore (kWhEP/m2/an)
Émissions de gaz à effet de serre
Faible émission de GES
3
Forte émission de GES(kgeqCO2/m2/an)
Contact PRATS
Contacter gratuitement à l'aide du formulaire ci-dessous.