NORMANDIE, Suisse Normande, PONT D'OUILLY : appartement lumineux
Pont-d'Ouilly 14690
0
Honoraires à la charge de l'acquéreur (Prix hors honoraires : 90000 euros).
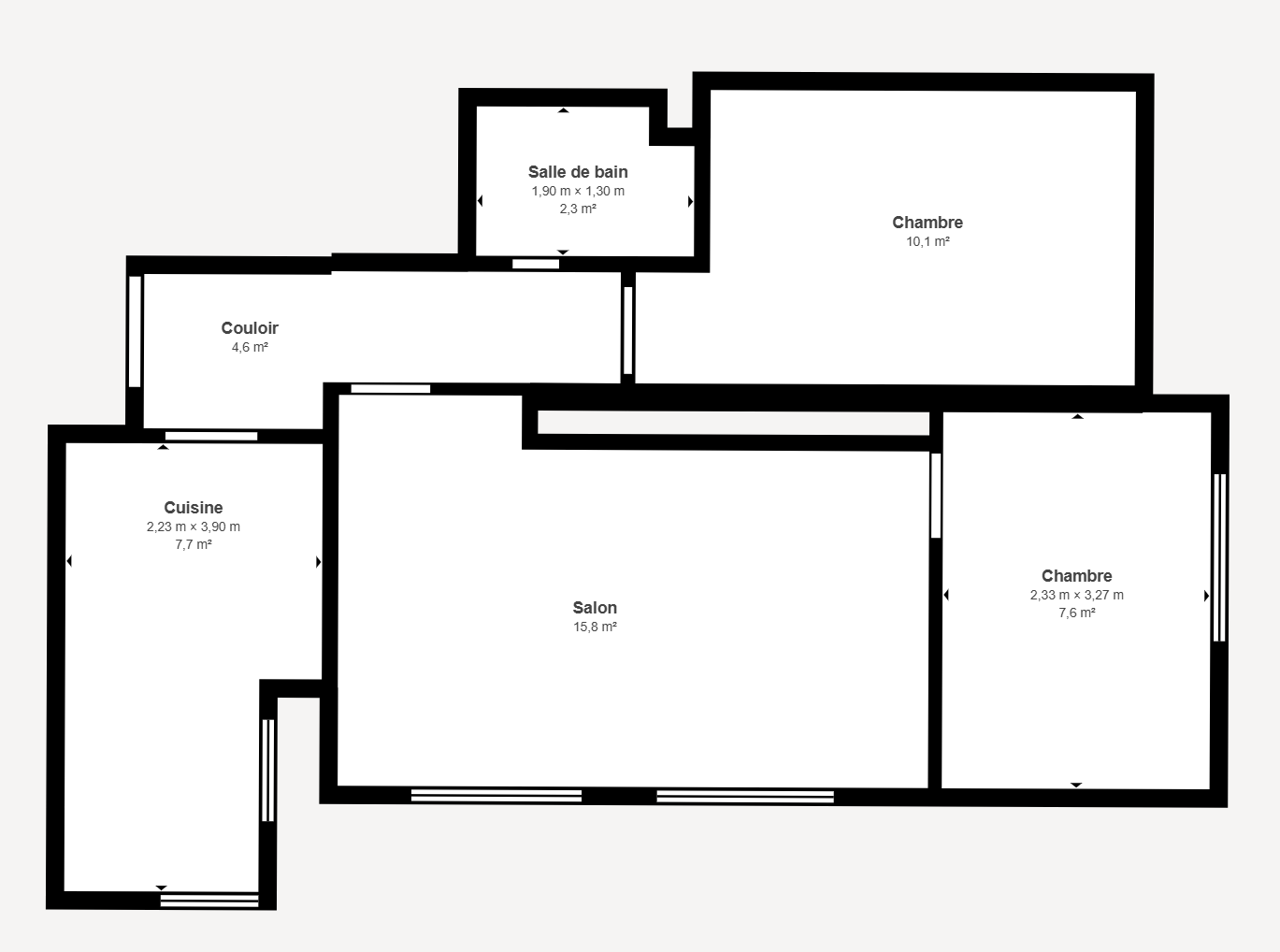
NORMANDIE, Suisse Normande, 50 min sud CAEN, à Pont d'Ouilly, découvrez cet appartement avec de belles vues situé dans une petite copropriété, idéalement placé au rez-de-chaussée, avec de beaux espaces annexes très recherchés : garage, cave, grenier et jardin. L'appartement d'une superficie de 59,28m² se compose de : - Une entrée/vestibule, une cuisine aménagée, un séjour lumineux ouvrant sur un balcon à l'arrière, deux chambres, une salle de bains, un WC indépendant. En complément, la vente inclus : un garage et une cave en sous-sol, un grenier divisé en deux parties au deuxième étage, une parcelle de terrain actuellement en jardin avec une petite cour. Idéal pour une résidence principale, un pied-à-terre en Suisse Normande ou un investissement locatif ! N'attendez pas, appelez-nous : ALT IMMOBILIER Pont d'Ouilly - 02.31.50.30.00 REFERENCE : DE138P - PRIX : 98 900 HAI Le prix comprend les honoraires d'agence à la charge de l'acquéreur soit 9,89 % TTC du prix hors honoraires. Agence ALT IMMOBILIER de PONT D'OUILLY Tel : 02 31 50 3000. ALT IMMOBILIER spécialiste de la SUISSE NORMANDE c'est aussi une agence à PUTANGES-LE-LAC (02.33.12.52.12) à votre service. NORMANDY, Suisse Normande, under an hour from the ferry port and landing beaches in the charming and tourist town of Pont d'Ouilly is this ground floor appartment with a surface of 59,28m² beautiful views, including : an entrance hall, fitted kitchen, bright living room with balcony, two bedrooms, shower room, separate toilet. Additional features included in the sale : a garage and a cellar in the basement, an attic divided into two rooms on the second floor, a plot of land used as a garden with a small courtyard area. Perfect as a main residence, a holiday home in the Suisse Normande or a rental investment. REFERENCE : DE138P - PRICE : 98 900 euros agency fees included. The price includes agency fees charged to the buyer, 9,89 % TTC of the price without the fees. Agency ALTIMMOBILIER in PONT D'OUILLY Tel : + 33 2 31 50 3000 - 2 Agencies at your service, specialists in the SUISSE NORMANDE.
Honoraires inclus de 9.89% TTC à la charge de l'acquéreur. Prix hors honoraires 90 000 . Dans une copropriété de 3 lots. Aucune procédure n'est en cours. Classe énergie G, Classe climat C Logement à consommation énergétique excessive. Montant estimé des dépenses annuelles d'énergie pour un usage standard : entre 3190.00 et 4370.00 sur les années 2021, 2022 et 2023 (abonnements compris). Les informations sur les risques auxquels ce bien est exposé sont disponibles sur le site Géorisques : georisques.gouv.fr.
59.28 m²
1 668 €
19 m²
3
2
1
1 (séparé)
9.89 %
1948
Oui
Oui (3 lots)
Consommations énergétiques
Logement économe
718
Logement énergivore (kWhEP/m2/an)
Émissions de gaz à effet de serre
Faible émission de GES
24
Forte émission de GES(kgeqCO2/m2/an)
Contact ALT IMMOBILIER Pont-d'Ouilly
Contacter gratuitement à l'aide du formulaire ci-dessous.