Nouveau, à 5min de Magny, beau terrain à bâtir de 440m² avec
Magny-le-Hongre 77700
0
Honoraires à la charge du vendeur.
Les charges de location sont prévisionnelles mensuelles avec régularisation annuelle.
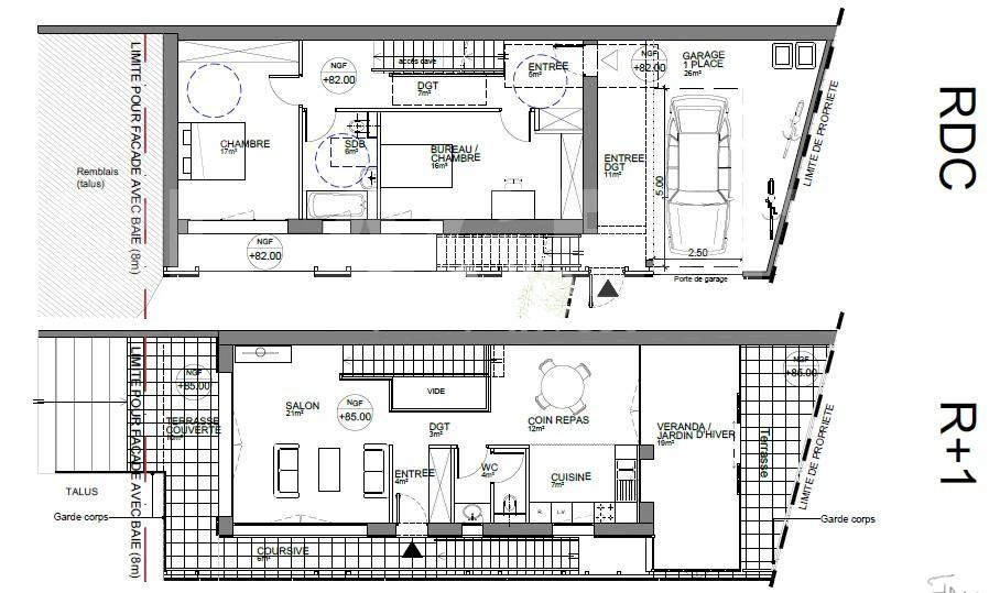
Nouveau, à 5 min de Magny le Hongre, beau terrain à bâtir de 440m² env. avec projet accordé pour une maison d'architecte de 152m² env., Orientation idéale plein SUD. Quartier résidentiel privilégié. Viabilités sur rue : EU, Epot, Elec, Fibre, Gaz). Etude de sol G1 réalisée. Permis de Construire accordé: démarrez vos travaux dans 3 mois !
Honoraires à la charge du vendeur. Les informations sur les risques auxquels ce bien est exposé sont disponibles sur le site Géorisques : georisques.gouv.fr.
Votre conseiller We Invest France : Cyril Savry Agent commercial (Entreprise individuelle) RSAC 815 096 227 MEAUX. Les informations sur les risques auxquels ce bien est exposé sont disponibles sur le site Géorisques : www.georisques.gouv.fr
440 m²
393 €
440 m²
Contact Cyril Savry
Contacter gratuitement à l'aide du formulaire ci-dessous.