Les charges de location sont prévisionnelles mensuelles avec régularisation annuelle.
La part des honoraires pour la réalisation de létat des lieux de ce bien est de 182.94 euros.
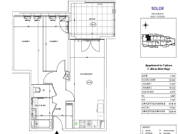
NOUVEAU COGOLIN, rue Marceau, résidence recente , à proximité immédiat du centre ville . Piscine sur le toit terrasse 206- Au 02eme étage avec ascenseur, Appartement T3 de 60.98m2 comprenant une entrée avec placard , un dégagement desservant un séjour cuisine aménagée de 22.42 m2, une chambre de 10.07m2 , une seconde chambre de 13.49m2 une salle de bains , un WC indépendant . Grande Terrasse de 11.02 m2 exposée Ouest Loué avec un garage en sous sol motorisé avec prise pour véhincule électrique LIBRE 04/11/2025 Loyer mensuel : 923EUR Provision mensuelle de charges : 140EUR ( provision eau chaude et charges communes générales ) Dépôt de garantie : 923EUR Honoraires charge locataire: Honoraires de visite, de constitution du dossier du locataire et de rédaction du bail : 8 EUR TTC/m2 soit 487.84EUR ttc + honoraires de réalisation de l'état des lieux d'entrée : 3 EUR TTC/m2 soit 182.94EUR ttc
60.98 m²
22 m²
3
2
1
1
2
670.78 %
04/11/2025
140 € / mois
Oui
Oui
Consommations énergétiques
Logement économe
40
Logement énergivore (kWhEP/m2/an)
Émissions de gaz à effet de serre
Faible émission de GES
20
Forte émission de GES(kgeqCO2/m2/an)
Contact GLEIM
Contacter gratuitement à l'aide du formulaire ci-dessous.