Nouveau Lotissement en exclusivité 13 lots a Bâtir Villelaur
Villelaure 84530
0
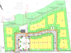
Nouveau lotissement exclusif Le Clos Ricard Jaqueme à Villelaure
En exclusivité, découvrez 13 terrains à bâtir viabilisés et aménagés, libre constructeur, au sein du lotissement Le Clos Ricard Jaqueme.
Surfaces disponibles : de 176 m2 à 869 m2 Prix : de 129 000 EUR à 183 000 EUR
Atouts de l'emplacement : o À seulement 7 minutes de l'accès autoroute o 5 minutes de Pertuis et de toutes les commodités o Proximité d'Aix-en-Provence et du Luberon o Vue dégagée sur la plaine et les collines environnantes, avec la Sainte-Victoire en toile de fond
Les plus du projet : o Terrains plats, viabilisés et aménagés o Libre choix du constructeur o Environnement calme et verdoyant, cadre idéal pour un projet familial ou résidentiel
Ce nouveau lotissement offre une opportunité rare de bâtir votre maison dans un secteur recherché, alliant confort de vie, nature et accessibilité.
Contactez-nous dès aujourd'hui pour recevoir le plan de composition et réserver votre futur terrain !
Contact Hugo BONDIL 06 43 46 80 59
407 m²
391 €
407 m²
Oui
Contact BONDIL HUGO
Contacter gratuitement à l'aide du formulaire ci-dessous.