Honoraires à la charge de l'acquéreur (Prix hors honoraires : 0 euros).
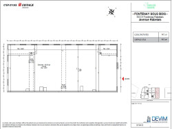
Sur la première parcelle, les 4 premiers bâtiments (A, B, C & D) seront édifiés en 192 logements en accession avec 3 locaux d'activités.
La résidence Inflor&Sens s'érige autour d'un îlot paysager central qui sera le poumon vert du nouveau quartier. Située dans le Quartier de la Redoute proche du centre-ville de Fontenay-sous-Bois, la résidence Inflor&Sens est au coeur d'un choix varié de commerces et d'équipements publics. Les transports en commun à proximité faciliteront le quotidien avec les lignes A et E du RER, une future gare du Grand Paris (Val de Fontenay) et plusieurs lignes de bus.
Fontenay-sous-Bois est une commune française située dans le département du Val-de-Marne à la limite de la Seine-Saint-Denis en région Île-de-France. Fontenay-sous-Bois est une ville de la proche banlieue Est parisienne, située à 3 km de Paris. En 2022, la commune comptait 52 646 habitants (source INSEE). C'est une commune dont le tissu économique et commerciale est représenté en quantité avec 470 commerces et 522 artisans. C'est une mixité entreprises et commerces qui génère une clientèle en journée et résidentielle. C'est une opportunité car le maillage commercial est inégal et doit être comblé, plusieurs projets de transformation sont env cours sur la ville.
Honoraires de 13 239 HT à la charge du locataire. Dépôt de garantie 11 033 . DPE en cours. Les informations sur les risques auxquels ce bien est exposé sont disponibles sur le site Géorisques : georisques.gouv.fr.