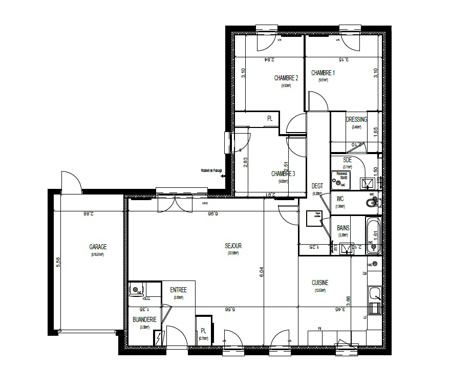
Franchise Ouest Immo est ravie de vous présenter ce hangar de 115 m2 offrant un immense potentiel pour la création d'un super loft de 116 m2 sur la commune de Collonges au mont d'or. Vendu travaux finis, ce bien vous permettra de laisser libre cours à votre créativité et de concevoir un espace de vie exceptionnel. Un permis de construire purgé est inclus dans la vente, permettant de démarrer les travaux immédiatement après l'achat. Le hangar se situe sur une parcelle indépendante de 400 m2, vous offrant une intimité totale et de nombreuses possibilités d'aménagement. Le permis de construire inclut dans la vente propose également la création d'une piscine, vous permettant de profiter de moments de détente et de rafraîchissement lors des journées ensoleillées. Ce projet vous offre des volumes importants et aérés. Vous pourrez aménager ces espaces selon vos préférences, en y ajoutant une cuisine ouverte, un salon confortable, ainsi qu'une salle à manger conviviale. Imaginez un espace moderne, élégant et adapté à votre style de vie. Ne manquez pas cette occasion de créer un super loft unique dans un environnement qui vous ressemble. Contactez-nous dès aujourd'hui pour obtenir plus d'informations, planifier une visite et donner vie à votre projet de loft sur mesure. Avec un budget de 550 000 EUR, vous pouvez réaliser votre rêve d'un espace de vie exceptionnel et personnalisé. Plan de parcelle et intérieure maison disponibles par mail, pour visiter 7/7 contactez TERRASSE & JARDIN au 06x58x55x30x65 ou Bernard Montillet 06.67.11.22.11 ouavec la référence 0036. TERRASSE & JARDIN, ce sont 2 agences sur l'Ouest Lyonnais, une ouverture 7/7 en NON STOP 8/20H, mais c'est surtout l'agence du choix avec une trentaine de terrain disponible libre de constructeurs et de nombreux autres biens.
116 m²
3 448 €
415 m²
4
3
Contact MONTILLET Bernard
Contacter gratuitement à l'aide du formulaire ci-dessous.