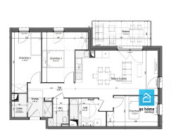
Cet appartement T4, disponible en 2026, offre un espace de vie confortable et moderne de 82.32 m². Situé au premier étage d'une résidence avec ascenseur, il comprend un salon ouvert sur une cuisine, de trois chambres spacieuses, une salle de bains et wc séparé. Profitez de l'extérieur avec un balcon de 10 m²
L'appartement bénéficie d'une excellente isolation thermique et phonique grâce aux fenêtres en PVC avec double vitrage. Conforme aux normes PMR, il est doté d'un chauffage collectif pour un confort optimal toute l'année.
Côté commodités, il dispose de deux places de stationnement extérieures et est situé à proximité de nombreuses infrastructures : écoles, crèches, commerces, restaurants, et arrêts de bus. La fibre optique est également disponible.
Pour plus d'informations, contactez Ax'home Immobilier.
Les informations sur les risques auxquels ce bien est exposé sont disponibles sur le site Géorisques : www.georisques.gouv.fr.
Honoraires à la charge du vendeur. Dans une copropriété de 19 lots. Aucune procédure n'est en cours. Non soumis au DPE. Les informations sur les risques auxquels ce bien est exposé sont disponibles sur le site Géorisques : georisques.gouv.fr.
Carte pro. CPI 67012016000014808 AC ADC 6701 2020000243374. Ax'Home Immobilier - 2 agences de proximité pour mieux vous accompagner.
Oberhausbergen - 104A Route de Saverne (en face de Prowin) Wiwersheim - 33 Allée de l'Economie (Galerie 'Au Jardin des Sens' au dessus d'Esprit Pain)
82.32 m²
3 780 €
10 m²
28 m²
4
3
1
1 (séparé)
1 sur 2
2026
Nord
1 (10 m²)
Oui
2
Oui (19 lots)
Contact AX'HOME IMMOBILIER
Contacter gratuitement à l'aide du formulaire ci-dessous.