Imaginez-vous vivre dans un appartement T3 neuf, niché au coeur de la charmante ville d'Ernolsheim-Bruche. Ce bien exceptionnel, livrable courant 2026, vous offre un cadre de vie idyllique, alliant modernité et confort.
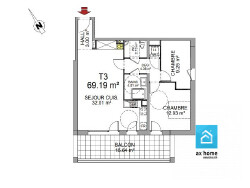
Avec une surface habitable de 69.19 m², cet appartement est parfait pour une vie en famille ou en couple, avec des espaces généreux et bien agencés. Il se compose d'un séjour / cuisine ouverte de 32.01 m², idéal pour recevoir vos proches, deux chambres, une salle de bains et un wc séparé.
Avec une exposition S/O et son balcon de 15.64 m², vous bénéficiez d'une lumière naturelle abondante tout au long de la journée et de confort.
Cet appartement est situé au premier étage d'un immeuble équipé d'un ascenseur, facilitant ainsi l'accès pour tous. Conforme aux normes PMR, il offre un confort d'usage optimal pour tous les résidents
Caractéristiques : - Logement 3 pièces - Isolation RE2020 : performances énergétiques optimisées - Chauffage : individuel au sol, au gaz - Confort : volets motorisés, ascenseur accessible PMR - Prestations de qualité : choix de carrelages, parquets, placards aménagés, WC suspendu, cellier - Espaces extérieurs pour chaque logement
Points forts : - Ascenseur - Terrasse 16 m² - Prestations grand confort - Possibilité de visiter notre logement témoin sur simple demande Contactez nous AX'HOME IMMOBILIER ? 03 88 61 37 09 - ?? axhome@axhome.net | www.axhome.immo Deux agences pour plus de proximité : - 104 A Route de Saverne - Oberhausbergen - 33 Allée de l'Economie - Wiwersheim Les informations sur les risques auxquels ce bien est exposé sont disponibles sur le site Géorisques : www.georisques.gouv.fr. Le DPE sera fourni à réception du logement.
Honoraires à la charge du vendeur. Dans une copropriété de 21 lots. Aucune procédure n'est en cours. Non soumis au DPE. Les informations sur les risques auxquels ce bien est exposé sont disponibles sur le site Géorisques : georisques.gouv.fr.
Carte pro. CPI 67012016000014808 AC ADC 6701 2020000243374. Ax'Home Immobilier - 2 agences de proximité pour mieux vous accompagner.
Oberhausbergen - 104A Route de Saverne (en face de Prowin) Wiwersheim - 33 Allée de l'Economie (Galerie 'Au Jardin des Sens' au dessus d'Esprit Pain)
69.19 m²
4 452 €
32 m²
3
2
1
1 (séparé)
1 sur 2
2026
Sud
Ouest
Oui
1
Oui
Oui (21 lots)
Contact AX'HOME IMMOBILIER
Contacter gratuitement à l'aide du formulaire ci-dessous.