Les charges de location sont prévisionnelles mensuelles avec régularisation annuelle.
La part des honoraires pour la réalisation de létat des lieux de ce bien est de 70 euros.
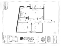
DELIN IMMOBILIER vous propose à Noyal-Chatillon / Seiche, un Appartement de TYPE 3 dans une résidence de STANDING, idéalement située à 2 minutes de Rennes. Proche de toutes les commodités, arrêt de bus STAR au pied de la résidence. Pièce de vie très lumineuse d'environ 27 m2 avec cuisine ouverte aménagée, entrée/dégagement avec placard aménagé, 2 chambres (11,17 et 13,91 m2) sur parquet avec placards aménagés, salle de bains et wc séparé. 2 places de stationnements en sous sol sécurisé. ASCENSEUR, visiophone. Chauffage gaz de ville. Classe Énergie : B (87kWh ep/m2.an). DISPONIBLE au 26 Octobre 2025. LOYER 620EUR. CHARGES 70EUR (charges de copropriété récupérable +entretien chaudière compris+provision ordure ménagère). HONORAIRES à charge du LOCATAIRE 516.40EUR TTC AU TOTAL (dont Honoraires Agence 446.4EUR + 70EUR pour Réalisation État des Lieux d'entrée). Renseignements et visites : Lucas DELIN O6 24 49 63 14 ou O2 99 52 38 35. DELIN IMMOBILIER. www.delin-immobilier.fr
66.79 m²
26 m²
3
2
1
2 sur 2
516.4 %
70 € / mois
2012
Ouest
1
Oui
Consommations énergétiques
Logement économe
87
Logement énergivore (kWhEP/m2/an)
Émissions de gaz à effet de serre
Faible émission de GES
20
Forte émission de GES(kgeqCO2/m2/an)
Contact DELIN Lucas
Contacter gratuitement à l'aide du formulaire ci-dessous.