Goodshowcase

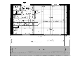
Vente maison 4 pièces
325 000 €

Annonces similaires

Vente maison

Noyal-Châtillon-sur-Seiche 35230 - 0

273 100 €

...22...

Voir l'annonce

Vente maison

Noyal-Châtillon-sur-Seiche 35230 - 0

269 000 €

...Je suis ravis de vous présenter cette belle maison familiale offrant confort, espace et de...

Voir l'annonce

Vente maison

Noyal-Châtillon-sur-Seiche 35230 - 0

349 900 €

...3 chambres, une salle d'eau et un wc séparé...

Voir l'annonce

Vente maison

Noyal-Châtillon-sur-Seiche 35230 - 0

272 500 €

...be/w_jzcW-H_eo?si=VeZ44kovrwgV7SOrÀ seulement 4 minutes à pied de l'arrêt de bus : Louis Texier -...

Voir l'annonce

Vente maison

Noyal-Châtillon-sur-Seiche 35230 - 0

364 000 €

...Dans le centre de Noyal Chatillon, proche des commerces et du bus, ce pavillon de 111m2...

Voir l'annonce