OPPORTUNITÉ RARE : Charmante longère à Pannes (45), 7 pièces
Pannes 45700
0
Honoraires à la charge du vendeur.
À seulement 1h30 de Paris Sud via l'A6, située sur la commune de Pannes, charmante bourgade offrant commerces de proximité (bar, boulangerie, fleuriste...), venez découvrir cette belle longère de 251 m2 habitables.
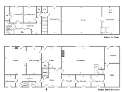
Rez-de-chaussée : - Spacieuse entrée - Couloir desservant W.C et salle de bains avec douche - Cuisine aménagée ouverte sur une vaste salle à manger de 50,3 m2 - Grand séjour avec cheminée de 58 m2 - 2 chambres confortables (20,5 m2 et 18,75 m2) - Cellier, chaufferie, atelier et garage Étage : - 3 chambres (16,86 m2, 11,17 m2 et 12 m2) - Salle d'eau avec W.C (5,13 m2)
À l'extérieur, vous profiterez d'un jardin de 1 341 m2 avec une piscine (liner à remplacer- machinerie à faire vérifier). Dépendances à usage de garage et local chaufferie (38,7 m2).
Prestations : - Chauffage central au fuel, cuve en plastique sanitaire - Possibilité de passer à une PAC. - Fenêtres en double vitrage PVC/bois avec volets roulants électriques et battants bois - Tout à l'égout
Des travaux de remise aux normes électriques seront à prévoir, ainsi qu'un rafraîchissement général. Une opportunité rare pour les amoureux de la campagne à proximité de Paris, dans un cadre paisible et verdoyant !
Prix : 198 000EUR (frais d'agence inclus, à la charge du vendeur)
Diagnostic de Performance Énergétique (DPE) : Classe F (279 kWh/m2/an) audit énergétique réalisé. Émission de Gaz à Effet de Serre (GES) : Classe F (74 kg CO2/m2/an)
Montant estimé des dépenses annuelles d'énergie de ce logement pour un usage standard est compris entre 5070 EUR et 6910 EUR . 2021 étant l'année de référence des prix de l'énergie utilisés pour établir cette estimation.
Taxe Foncière : 1828EUR
Les informations sur les risques auxquels ce bien est exposé sont disponibles sur le site Géorisques
Contactez votre conseiller 06.09.39.52.71
Expert Immobilier Agréé Agent commercial immatriculé sous le numéro 537898025 RSAC de RENNES Les informations sur les risques auxquels ce bien est exposé sont disponibles sur le site Géorisques : www.georisques.gouv.fr - Annonce rédigée et publiée par un Agent Mandataire -
251 m²
789 €
58 m²
7
5
1
1
2
1900
Sud
1
1
Oui
Consommations énergétiques
Logement économe
279
Logement énergivore (kWhEP/m2/an)
Émissions de gaz à effet de serre
Faible émission de GES
74
Forte émission de GES(kgeqCO2/m2/an)
Contact Bruno JOSEPH
Contacter gratuitement à l'aide du formulaire ci-dessous.