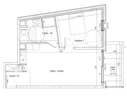
ORGÈRES - Appartement 2 pièces 48.66m² Sud - 2ème étage - ascenseur - balcon 6.30m² - stationnement en sous-sol sécurisé. Parfaitement implanté au sud de Rennes Métropole, dans la charmante commune d'Orgères, cet appartement de 48,66 m² est situé au 2? étage d'une résidence moderne et élégante. Avec son ascenseur et son accès sécurisé, cette résidence bénéficie d'une localisation stratégique, à deux pas des commerces, services, et commodités, offrant un cadre de vie alliant praticité et confort au quotidien. Orienté plein sud, cet appartement 2 pièces lumineux propose : Une entrée avec un placard, Un séjour avec cuisine ouverte, donnant accès au balcon de 6.30m². Une chambre, une salle d'eau avec wc. Une place de stationnement extérieure privative complète ce bien. Que vous soyez à la recherche d'un cadre de vie convivial ou d'un investissement durable, cette résidence allie confort et sérénité dans une commune où il fait bon vivre. Prix promoteur - Frais de notaire réduits - Normes RT2020 Les informations sur les risques auxquels ce bien est exposé sont disponibles sur le site Géorisques : www.georisques.gouv.fr Copropriété de 17 lots - dont 15 lots habitation. (Pas de procédure en cours). Charges annuelles : 691 euros.