ORGERES - Appartement 4 pièces 89.69m² Sud - 3ème étage - ascenseur - terrasses 31.50m² - garage et stationnement
Orgères 35230
0
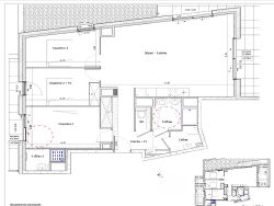
ORGÈRES - Appartement T4 de 89,69 m² avec terrasses et stationnements - 3ème étage - ascenseur. Situé idéalement au sud de Rennes Métropole, sur la commune prisée d'Orgères, découvrez cet appartement élégant niché au 3? et dernier étage d'une résidence moderne avec ascenseur et accès sécurisé, à proximité immédiate des commerces et commodités. Orienté plein sud, cet appartement lumineux propose : Une entrée avec un spacieux placard, Un vaste séjour avec cuisine ouverte, donnant accès à une terrasse ensoleillée de 21 m², Trois chambres, toutes ouvertes sur une seconde terrasse de 10.50m², dont une suite parentale avec salle d'eau privative, Une salle d'eau supplémentaire avec double vasques, Un WC indépendant, Un cellier pratique. Un garage sécurisé en sous-sol et une place de stationnement privative complètent ce bien. Que vous soyez à la recherche d'un cadre de vie convivial ou d'un investissement durable, cette résidence allie confort et sérénité dans une commune où il fait bon vivre. Prix promoteur - Frais de notaire réduits - Normes RT2020 Ne laissez pas passer cette opportunité ! Les informations sur les risques auxquels ce bien est exposé sont disponibles sur le site Géorisques : www.georisques.gouv.fr Copropriété de 17 lots - dont 15 lots habitation. (Pas de procédure en cours). Charges annuelles : 1281 euros.