Honoraires à la charge de l'acquéreur (Prix hors honoraires : 65400 euros).
Les charges de location sont prévisionnelles mensuelles avec régularisation annuelle.
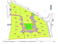
Pardies centre, situé à 10mm de la sortie Artix de l'autoroute Bayonne Pau Toulouse et Bordeaux, près de l'aéroport international Pau-Pyrénées, le village de Pardies est une porte ouverte pour l'aventure & le loisir en Béarn. A une 40mm des pistes de ski des Pyrénées et 1h des plages de l'Océan Atlantique, à la périphérie de Pau, dans un environnement calme et à proximité de toutes les commodités, le lotissement 'Lou Bilatge' à Pardies propose 18 lots de terrain à bâtir, libres de constructeurs, d'une surface de 581 m2 à 933 m² à partir de 48 000 euros. Les terrains sont entièrement viabilisés : Eau potable, Electricité, Téléphone, Tout à l'égout. Renseignez vous sans tarder.
Honoraires inclus de 5.5% TTC à la charge de l'acquéreur. Prix hors honoraires 65 400 . Les informations sur les risques auxquels ce bien est exposé sont disponibles sur le site Géorisques : georisques.gouv.fr.
754 m²
92 €
754 m²
5.5 %
Contact CLAUDE ESCOFET
Contacter gratuitement à l'aide du formulaire ci-dessous.