PARIS 10 - 4 PIÈCES de 95,75m² avec TERRASSE de 17,80m²
Paris 75010
0
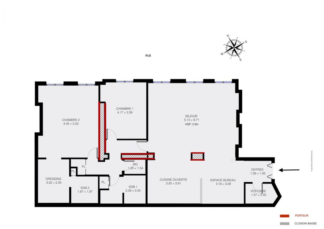
Paris 10 - Rue de Paradis, à 9 minutes à pied du métro Poissonnière, venez découvrir ce magnifique appartement de 95,75 m² Carrez, entièrement rénové par architecte, alliant charme parisien authentique et modernité, situé dans un immeuble de caractère datant de 1850.
Ce beau quatre pièces saura vous séduire par sa grande terrasse de 17,8 m² exposée plein sud, idéale pour profiter des beaux jours.
Situé au 5ème étage accessible par ascenseur, ce bien comprend une entrée qui dessert côté cour au calme, une première chambre avec sa salle de bain attenante, une deuxième chambre lumineuse avec trois grandes fenêtres, une salle de douche, un dressing, des wc séparés et une grande salle à manger. Côté rue, vous trouverez une cuisine séparée et un agréable salon lumineux, le tout donnant sur la terrasse.
Ce bien rare représente une opportunité unique avec un extérieur conséquent.
Une cave complète ce bien.
Ce lieu s'adresse à une clientèle appréciant la modernité d'un environnement vibrant. Le quartier, réputé pour son ambiance cosmopolite offre un cadre de vie dynamique.
Des transports en commun permettent de rejoindre n'importe quel point de Paris. Des commerces, restaurants et boutiques sont à proximité immédiate, répondant à tous les besoins et envies.
DPE : D/196 GES : D/40. Estimation des coûts annuels d'énergie du logement : entre 1342 euros et 1816 euros.
Copropriété de 86 lots. Charges annuelles moyennes du lot : 2900 euros.
Procédures en cours : non.
PARIS 10 - 4 PIÈCES de 95,75m² - avec TERRASSE de 17,80m²
Votre interlocuteur : Stéphane LEFÈVRE au 06 08 52 31 97 (RSAC 443 814 256 Paris) pour plus d'informations et organiser une visite.
95 m²
16 579 €
18 m²
4
2
1
1
1
5 sur 6
1850
Oui
Consommations énergétiques
Logement économe
196
Logement énergivore (kWhEP/m2/an)
Émissions de gaz à effet de serre
Faible émission de GES
40
Forte émission de GES(kgeqCO2/m2/an)
Contact Stéphane LEFEVRE
Contacter gratuitement à l'aide du formulaire ci-dessous.