Paris 15ème - GRENELLE/ COMMERCE - 4 pièces en dernier étage
Paris 75015
0
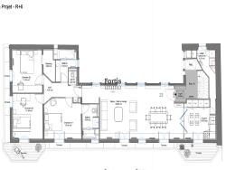
Paris 15ème - Grenelle / rue du Commerce - 4 pièces (105 m2) en dernier étage par ascenseur - traversant - Vue dégagée sur la tour Eiffel -
3 chambres - 2 petites terrasses et balcons filants - seul sur le palier
Au 6ème et dernier étage par ascenseur d'une copropriété entièrement réhabilitée et parfaitement tenue, bel appartement familial de 105 m2, traversant, avec vues dégagées sur le ciel, les monuments et les toits. Le bien se compose d'une entrée dans la pièce de vie traversante avec vue Tour Eiffel (32 m2), baignée de lumière de par ses nombreuses fenêtres donnant accès à la terrasse, exposition sud/ouest, une cuisine de 13,4m2, trois belles chambres, une salle de bains, une salle d'eau, deux dressings et des toilettes indépendants.
Plateau brut à aménager entièrement : aménagement de la cuisine et des pièces d'eau à prévoir, sol à installer (fenêtres en double vitrage). Une cave complète ce bien.
Possibilité d'installer la climatisation dans le salon
Bien soumis au statut de la copropriété : 2/33 lots Quote-part annuelle du budget prévisionnel : 9 968€/an DPE classé C
Pas de procédure en cours.
Pour organiser une visite, contactez Aurélie TODISCO au 06 64 66 43 29 ou par mail à atodisco@fortisimmo.fr. RSAC 979 725 264 EI.
105 m²
14 762 €
32 m²
4
3
1
1
2
6 sur 6
1928
Oui
Consommations énergétiques
Logement économe
176
Logement énergivore (kWhEP/m2/an)
Émissions de gaz à effet de serre
Faible émission de GES
28
Forte émission de GES(kgeqCO2/m2/an)
Contact Aurélie TODISCO
Contacter gratuitement à l'aide du formulaire ci-dessous.