À deux pas du Palais-Royal et du Louvre, dans le prestigieux quartier Palais-Royal ? Opéra, cet appartement niché au dernier étage d'un bel immeuble sculpté incarne l'élégance parisienne dans toute sa splendeur. Entièrement rénové avec goût, il allie confort contemporain et charme intemporel, sublimé par une vue imprenable sur les toits de Paris.
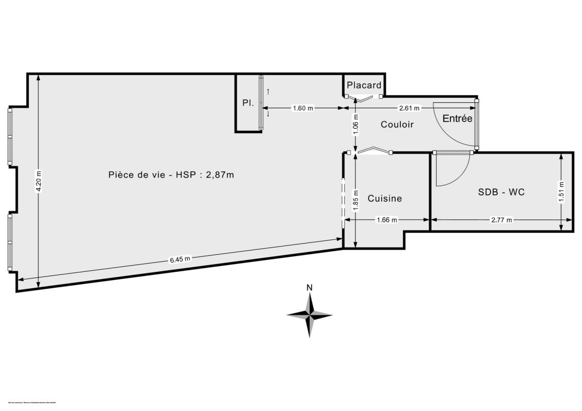
Dès l'entrée, la pièce de vie séduit par sa luminosité exceptionnelle grâce à ses deux fenêtres orientée plein ouest et qui s'ouvrent sur deux balconnets. L'espace salon et salle à manger, au décor soigné, offre une atmosphère chic et conviviale, sublimée par un parquet à chevrons et des finitions haut de gamme. La cuisine élégamment intégrée, aux lignes épurées et aux matériaux nobles, répond aux exigences d'un quotidien raffiné.
La chambre est véritable cocon.
La salle d'eau, sobre et contemporaine, complète cet ensemble pensé dans les moindres détails.
Le quartier, au c?ur du 1er arrondissement, bénéficie d'un environnement culturel et historique exceptionnel : Palais-Royal, Opéra, Comédie-Française, Louvre et jardins des Tuileries se trouvent à quelques minutes à pied, tout comme les adresses gourmandes, les galeries et les boutiques de créateurs.
Avec sa rénovation élégante, sa vue dégagée sur les toits de Paris et sa situation privilégiée dans l'un des quartiers les plus prestigieux de la capitale, cet appartement représente un pied-à-terre d'exception ou une résidence principale rare.
Bien soumis au statut de la copropriété. 2 lots. Quote part du budget prévisionnel annuel 200 €.
25 m²
19 800 €
1
1
7 sur 7
1830
Oui
Consommations énergétiques
Logement économe
229
Logement énergivore (kWhEP/m2/an)
Émissions de gaz à effet de serre
Faible émission de GES
7
Forte émission de GES(kgeqCO2/m2/an)
Contact Charles LABATUT
Contacter gratuitement à l'aide du formulaire ci-dessous.