Paris 2ème - Spécial Investisseur - Opportunité Immobilière
Paris 75002
0
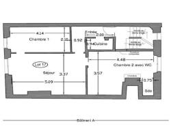
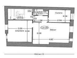
Sentier - Opportunité Investisseur - Placement stratégique à fort potentiel de plus-value. Nous vous proposons à la vente TROIS appartements actuellement loués, totalisant une superficie de 141 m², idéalement situés au c?ur du Sentier, à proximité de la rue des Jeûneurs et de la rue d'Uzès. Ces biens présentent un potentiel attractif pour les investisseurs à la recherche d'un bien avec forte valorisation future. Détails des biens : BÂTIMENT A (sur rue) 3ème étage : cuisine, séjour, 2 chambres, salle d'eau avec WC. Superficie de 45 m². Bien soumis au statut de la copropriété : 1/26 lots. Pas de procédure en cours. Quote-part du budget prévisionnel : 1 130€/an. BÂTIMENT B (sur cour) 3ème étage : entrée, palier, dégagement, salle d'eau avec WC, cuisine, séjour, chambre et combles. Superficie de 53 m². Bien soumis au statut de la copropriété : 1/26 lots. Pas de procédure en cours. Quote-part du budget prévisionnel : 1 347€/an. 2ème étage : entrée, cuisine, séjour, dégagement, salle d'eau avec WC, chambre. Superficie de 43 m². Bien soumis au statut de la copropriété : 1/26 lots. Pas de procédure en cours. Quote-part du budget prévisionnel : 1 075€/an. Informations supplémentaires : Bien soumis au statut de la copropriété : 3/26 lots. Pas de procédure en cours. Quote-part du budget prévisionnel global : 3 552€/an. Idéal pour investisseurs à la recherche d'un bien à fort potentiel de valorisation future, idéal recherche de déficit foncier, localisation recherchée. Contactez Gianni AURIEMMA au 06 19 99 63 15 pour plus de détails sur cette opportunité. RSAC Paris n° 894 271 048. Estimation confidentielle et gratuite de votre patrimoine disponible sur demande.
141 m²
5 496 €
1700
Consommations énergétiques
Logement économe
342
Logement énergivore (kWhEP/m2/an)
Émissions de gaz à effet de serre
Faible émission de GES
11
Forte émission de GES(kgeqCO2/m2/an)
Contact Gianni AURIEMMA
Contacter gratuitement à l'aide du formulaire ci-dessous.