Situé dans le prestigieux 7e arrondissement de Paris, au coeur de la paisible et élégante rue Barbet de Jouy, cet appartement en rez-de-jardin de 106 m2 offre un cadre de vie d'exception. Niché dans un immeuble de grand standing, parfaitement entretenu, il bénéficie d'un environnement résidentiel recherché, serein et d'une sécurité rare, au sein de l'un des quartiers les plus sûrs de la capitale, entouré de nombreuses ambassades et institutions.
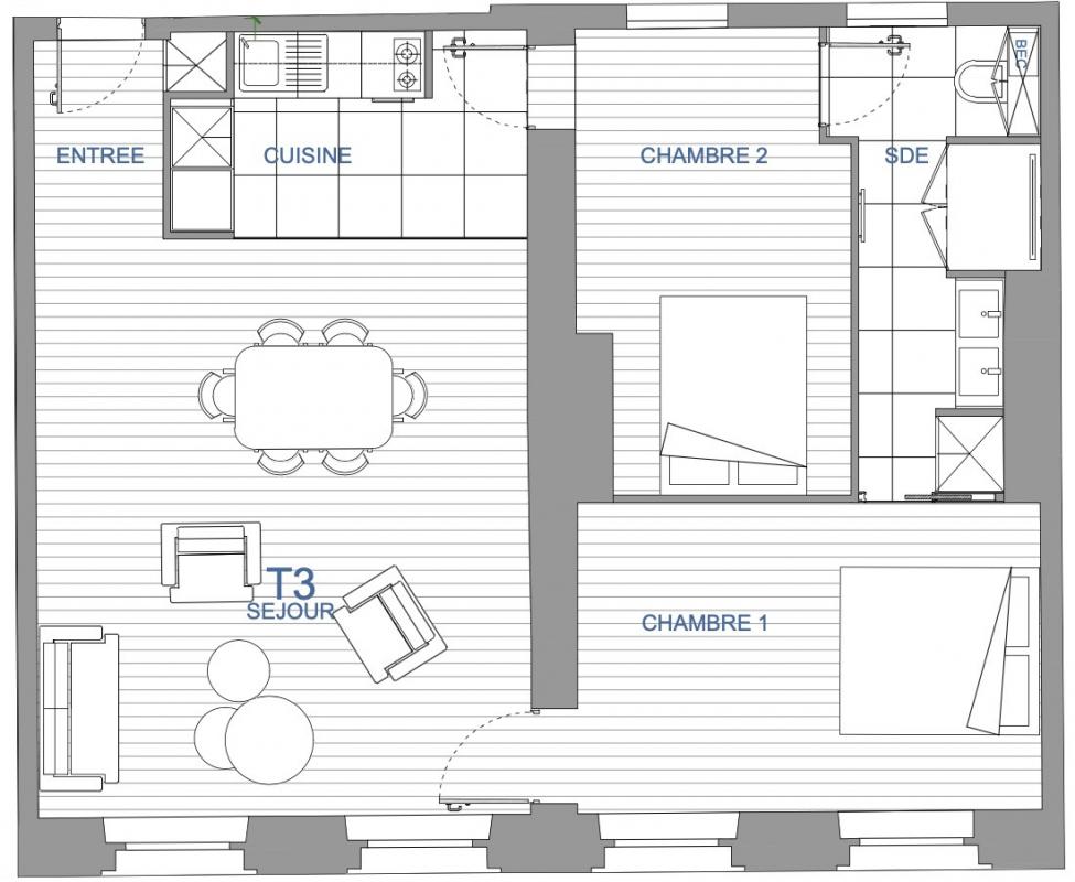
L'appartement s'ouvre sur un vaste triple séjour de 45 m2 prolongé par un magnifique jardin intérieur, entièrement clos et arboré, offrant un véritable havre de paix à l'abri des regards. La cuisine ouverte, moderne et entièrement équipée, s'intègre avec élégance à l'espace de réception, créant une atmosphère conviviale et raffinée.
La partie nuit comprend deux chambres spacieuses, une salle de bain, un dressing et de nombreux rangements intégrés, apportant confort et praticité au quotidien.
L'alliance du calme absolu, des beaux volumes, du raffinement architectural et de la sécurité environnante fait de cet appartement un bien rare au coeur du 7e arrondissement. Possibilité d'acquérir un emplacement de stationnement en sous-sol sécurisé en supplément.
Pour planifier une visite, entrez rapidement en contact avec Paris Vendôme Luxury - International Realty.