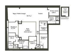
Rareté : BUREAUX avec commercialité vendu LIBRE avec PATIO au coeur du 18e village Idéalement situé à la lisière de Montmartre, dans une rue calme à proximité immédiate du boulevard, le Cabinet BR IMMOBILIER vous propose ces bureaux de 158,78 m2 Carrez, bénéficiant d'une commercialité autorisée et d'un patio privatif de 31,29 m2 Carrez, conçu comme un véritable jardin intérieur. Cet espace offre un cadre de travail exceptionnel, alliant design contemporain, volumes généreux, luminosité naturelle et calme absolu. Les bureaux se composent d'un vaste open space de 58,74 m2, idéal pour accueillir un espace d'accueil, un coworking ou une salle de réunion conviviale. Une cuisine américaine avec ilot central et une buanderie attenante complètent cet espace. Un bureau en mezzanine surplombe la pièce principale, parfait pour un espace de direction ou de création.L'ensemble comprend également quatre grands bureaux ou salles de réunion, tous ouverts sur le patio, ainsi que plusieurs salles d'eau et trois WC séparés. De nombreux rangements et dressings intégrés assurent un confort optimal au quotidien.
Climatisation réversible
Chauffage électrique à modules rayonnants
Charges de copropriété : 1 400 EUR / trimestre
DPE : C
Un bien rare sur le secteur, idéal pour cabinet professionnel, société de production, agence de communication ou bureaux de direction. PROJECTION Le Cabinet BR IMMOBILIER reste à votre disposition pour tout renseignement complémentaire et pour organiser une visite. Visite virtuelle disponible sur demande.
191.93 m²
8 076 €
58 m²
5
4
1
2
3
1870
Oui
Oui
Oui
Oui (60 lots)
Consommations énergétiques
Logement économe
166
Logement énergivore (kWhEP/m2/an)
Émissions de gaz à effet de serre
Faible émission de GES
6
Forte émission de GES(kgeqCO2/m2/an)
Contact LONGUET PROST
Contacter gratuitement à l'aide du formulaire ci-dessous.