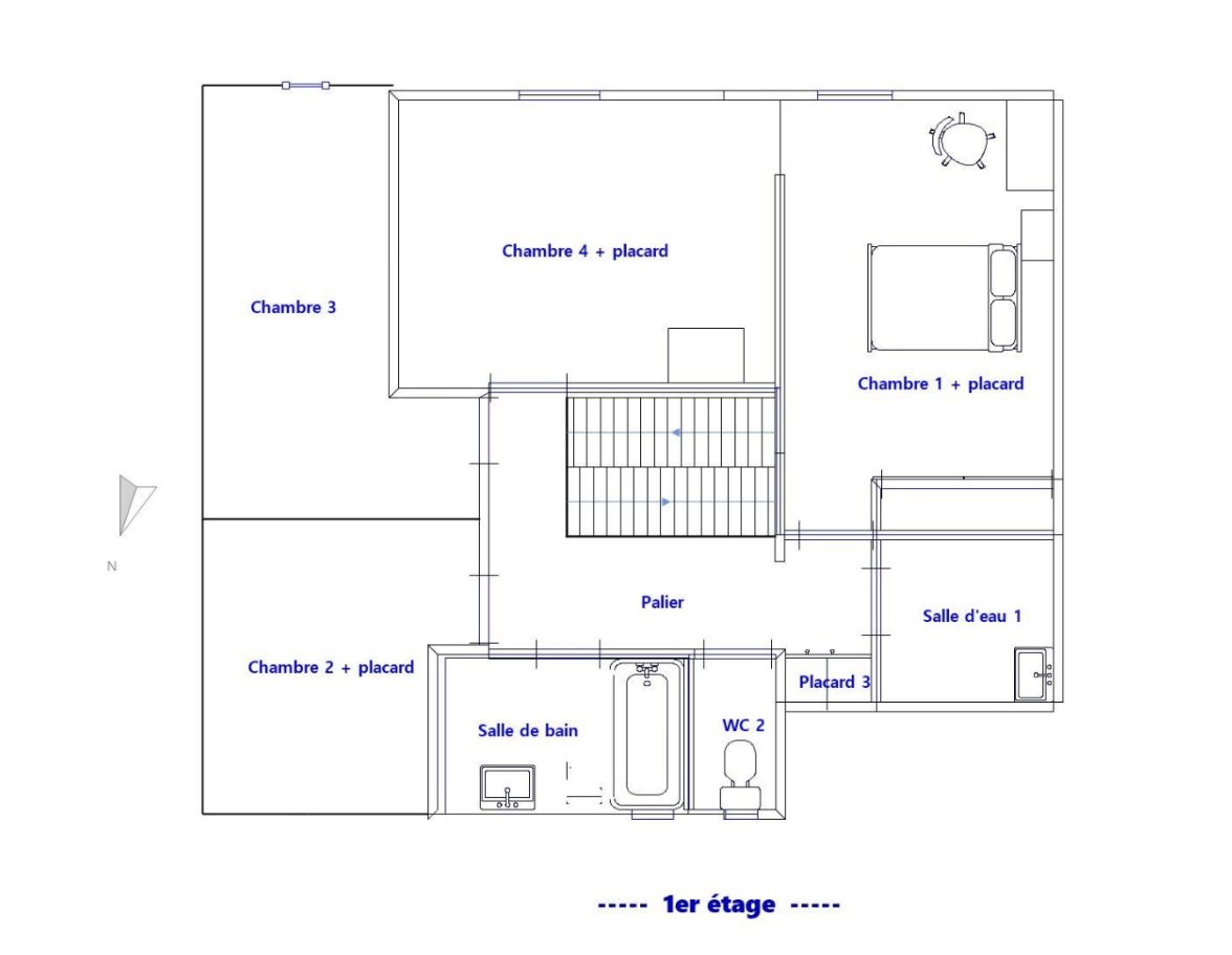
Transaxia NERONDES, DELCROIX Arnaud (EI) Pavillon sur 3000 M² de terrain avec possibilité de construire sur une parcelle de 1652M² avec chemin d'accès autre que la maison, elle se compose d'une entrée qui peut être modifiée pour agrandir la cuisine 12M², une pièce annexe ou chambre de 11M² qui peut être décloisonnée pour agrandir la salle à manger 32M² avec poêle à granule donnant sur la terrasse 15M² , Un couloir desservant 2 chambres 10.5/12M², la salle de bain 6M² et un WC séparé, à l'étage une mezzanine 15M² une salle d'eau 7.5M², une chambre 20M² qui peut être séparée en 2 et un bureau ou buanderie sous comble 10m², à l'extérieur 3 garages et une dépendance.Arnaud Delcroix Agent Commercial inscrit au RSAC de Bourges sous le N° 903609535 Les informations sur les risques auxquels ce bien est exposé sont disponibles sur le site Géorisques : www.georisques.gouv.fr « Les informations sur les risques auxquels ce bien est exposé sont disponibles sur le site Géorisques www.georisques.gouv.fr ».
140 m²
849 €
32 m²
3255 m²
10
4
1
1
2
1980
Aménagée
Consommations énergétiques
Logement économe
186
Logement énergivore (kWhEP/m2/an)
Émissions de gaz à effet de serre
Faible émission de GES
6
Forte émission de GES(kgeqCO2/m2/an)
Contact SANCERGUES
Contacter gratuitement à l'aide du formulaire ci-dessous.