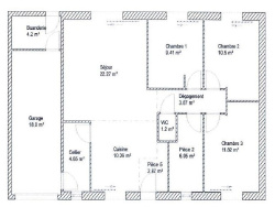
Proche autoroute (1.2kms) mais sans les nuisances, A seulement 3 minutes du centre-ville, Maison individuelle de plain-pied (83m2) comprenant : Cuisine ouverte/séjour, 3 chambres, salle d'eau, wc, cellier, buanderie et garage. Le tout sur une parcelle de 536m2. Exposition : Nord/Sud Construction 2015 Chauffage au sol (gaz de ville) Actuellement louée.
82.9 m²
2 352 €
22 m²
536 m²
4
3
1
1
2015
Sud
Nord
1
Oui
1
Consommations énergétiques
Logement économe
Logement énergivore (kWhEP/m2/an)
Émissions de gaz à effet de serre
Faible émission de GES
21
Forte émission de GES(kgeqCO2/m2/an)
Contact BISSON Maryline
Contacter gratuitement à l'aide du formulaire ci-dessous.