Pavillon + Terrain de 339m² à FRIGNICOURT. Eligible au prêt à taux zéro
Prix garanti hors évolution du prix des matériaux. Taxe d'aménagement offerte pour toute réservation avant le 31 décembre 2025.
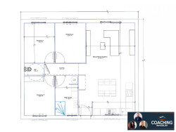
Pavillon offrant une entrée avec placards, un espace de vie de 40m² baigné de lumière ouvert sur une cuisine, 3 chambres, une salle de bains (douche à l'italienne), wc séparé, et une buanderie.
Terrain de 339m². Livré clé en main, aucuns travaux à prévoir.
Matériaux de qualité, nouvelle réglementation thermique (RT 2012), chauffage pompe à chaleur AIR-AIR, maison à faible consommation énergétique, classe énergétique A-A.
Frais de Notaire RÉDUITS. Plus de détail et renseignements en agence.
Honoraires à la charge du vendeur. Classe énergie A, Classe climat A Montant moyen estimé des dépenses annuelles d'énergie pour un usage standard, établi à partir des prix de l'énergie de l'année 2021 : entre 400.00 et 600.00 . Les informations sur les risques auxquels ce bien est exposé sont disponibles sur le site Géorisques : georisques.gouv.fr.
80 m²
1 938 €
40 m²
339 m²
5
3
1
1 (séparé)
2025
Oui
Consommations énergétiques
Logement économe
62
Logement énergivore (kWhEP/m2/an)
Émissions de gaz à effet de serre
Faible émission de GES
2
Forte émission de GES(kgeqCO2/m2/an)
Contact Coaching Immobilier
Contacter gratuitement à l'aide du formulaire ci-dessous.