PERPIGNAN CENTRE : MAISON 4 PIECES - 3 FACES - PARKING
Perpignan 66000
0
Honoraires à la charge du vendeur.
PERPIGNAN CENTRE : L'agence Laville Immo vous présente une opportunité rare dans cette résidence sécurisée : une maison neuve en 3 faces de 88 m2 (4 pièces) sur deux niveaux. Livraison prévue pour le 1er trimestre 2027 ! Un agencement familial et moderne :
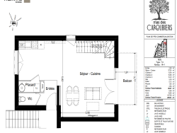
Rez-de-chaussée Pratique : Un espace de stationnement couvert et un cellier pour optimiser votre rangement.
Le Jardin Privé : Profitez d'un extérieur exceptionnel de plus de 171 m2 ! Un véritable écrin de verdure pour vos barbecues et les jeux des enfants.
1er Étage (Vie) : Un vaste salon-séjour avec cuisine américaine semi-équipée, ouvrant sur un balcon pour vos cafés au soleil. Un WC individuel complète ce niveau.
2ème Étage (Nuit) : 3 belles chambres lumineuses avec placards intégrés, une salle de bains aménagée et un second WC.
Prestations de standing : Volets roulants électriques, double vitrage, chauffage individuel et carrelage grand format. Des aides exceptionnelles à l'achat : C'est le moment idéal pour devenir propriétaire au Mas des Caroubiers :
TVA réduite à 5,5 % (au lieu de 20 %) ! Une économie majeure sur le prix de vente.
Éligible au Prêt à Taux Zéro (PTZ).
Frais de notaire réduits.
Contactez-nous pour une étude personnalisée : 04.68.34.29.86 / laville-immo@orange.fr . Bien soumis au statut de la copropriété. Prix direct Promoteur. Informations sur les risques disponibles sur : www.georisques.gouv.fr
88.67 m²
3 665 €
37 m²
4
3
1
2
01/01/2027
2027
Est
Oui
2
Oui
Consommations énergétiques
Logement économe
10
Logement énergivore (kWhEP/m2/an)
Émissions de gaz à effet de serre
Faible émission de GES
2
Forte émission de GES(kgeqCO2/m2/an)
Contact SELLIER
Contacter gratuitement à l'aide du formulaire ci-dessous.