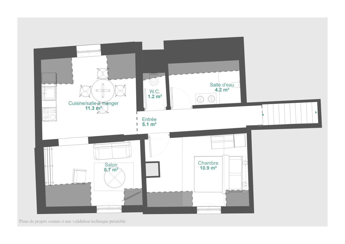
T2 de 47 m² - Terrasse & jardin - Centre-ville Le Châtelet-en-Brie (77) Imaginez un logement lumineux et cosy, avec terrasse et jardin privatifs, le confort d'une petite maison au prix d'un appartement ! Dans une petite copropriété intimiste de 4 logements, ce T2 en rez-de-chaussée offre calme, charme briard et vie de village à pied : commerces, écoles et marché accessibles en quelques minutes. À 10 min de Melun, 15 min de Fontainebleau et à deux pas de la Forêt de Fontainebleau, profitez d'un cadre naturel recherché tout en restant connecté à Paris (liaisons ferroviaires renforcées dès 2026). Le bien : à créer selon vos envies Proposé en état brut (plateau), ce 2 pièces de 47 m² vous permet de concevoir un intérieur 100 % à votre goût : - Pièce de vie spacieuse et lumineuse avec accès extérieur - Cuisine ouverte - 1 chambre confortable - Salle d'eau - Chauffage électrique individuel Extérieurs privatifs : - Terrasse 14 m² - Jardin privatif 60 m2 environ - Local de rangement privatif : 3,2 m² Stationnement et cave disponibles en options payantes, sous réserve de disponibilité. Option livraison en état fini possible (prestations personnalisables), mais non privilégiée, pour créer un intérieur unique et cosy, à votre image. Livraison prévisionnelle : 4? trimestre 2026 Plans et visuels fournis à titre indicatif et non contractuels. Vente sous réserve de division et constitution de la copropriété. Pourquoi c'est une opportunité rare - Petite copropriété de 4 logements seulement - Terrasse et jardin privatifs, rares en centre-ville - Cadre naturel recherché à proximité immédiate - Forte valorisation attendue grâce aux dessertes ferroviaires - Liberté totale pour aménager votre logement à votre image Idéal premier achat, pied-à-terre ou investissement dans un secteur dynamique entre nature et accessibilité parisienne.
Conformément à l'article 6-2 de la loi du 2 janvier 1970, le titulaire de la carte professionnelle informe le signataire que ce document lui est présenté par une personne dûment habilitée par lui et exerçant sous le statut d'agent commercial avec le N° RSAC Melun : 901 527 499 Les informations sur les risques auxquels ce bien est exposé sont disponibles sur le site Géorisques : www.georisques.gouv.fr