Petit prix mais GRAND potentiel pour cette ferme gasconne à rénover
Lectoure 32700
0
Christophe LAMAZERE vous propose en exclusivité pour le Réseau BSK cette ferme gasconne à rénover entièrement du sol au plafond.
Bâtie sur un terrain borné de 717 m² avec un puits, cette ancienne métairie de 114 m² au sol mérite le détour. Entièrement construite en pierres de Lomagne, avec une toiture remaniée et une belle charpente en bon état, la maison est au milieu d'un terrain orienté au Sud, arboré, piscinable avec un puits et une vue dégagée sur les vallons.
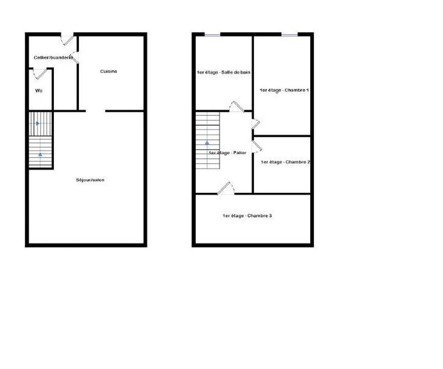
Au Rez-de-Jardin vous avez la possibilité de faire de belles pièces de vies tournées vers le Sud et le jardin principal ou vers le Nord où un autre joli jardin entouré de pierres sèches peut aussi vous accueillir pour des dîners entre amis.
Le premier étage est parfait pour y créer des chambres et salles de bains.
La structure de la maison est très bonne et particulièrement charmante. Vous pouvez en faire un véritable bijou et vous risquez vraiment d'être séduits...
La maison est sur la commune de Sainte-Mère à mi-distance entre Lectoure et Astaffort, proche d'Agen, avec un arrêt de bus SNCF de la ligne Auch-Agen.
Parfaite pour un jeune couple qui cherche un projet de rénovation ou bien pour une résidence secondaire. La proximité de Paris par TGV en fait un critère de choix.
Mon avis : Pour le prix d'un simple terrain à bâtir vous avez déjà une belle structure avec une histoire et un passé à faire revivre.
Il faudra un budget de travaux conséquent et penser aux raccordements électriques, eau et assainissement.
Je suis à votre disposition pour toute demande d'information et de visites.
Christophe LAMAZERE, BSK Immobilier 06 22 82 69 70
Cette annonce référence 305384 vous est présentée par votre agent commercial BSK Immobilier CHRISTOPHE LAMAZERE (EI) immatriculé au RSAC de AUCH (32000) sous le numéro 84952316200089.
Prix du bien : 49 000,00 €
Les honoraires d'agence sont à la charge du vendeur.
Non soumis au DPE.
Les informations sur les risques auxquels ce bien est exposé sont disponibles sur le site Géorisques : www.georisques.gouv.fr
114 m²
430 €
5
4
1848
Sud
Est
Oui
Contact CHRISTOPHE LAMAZERE
Contacter gratuitement à l'aide du formulaire ci-dessous.