Unique et Rare : Rénovation de très grand standing en plein centre de SAINT MALO : au calme, et à pied de la Plage et toutes commodités.
Le confort du neuf avec le charme de l'ancien : la façade en pierre de l'ancien Palais de Justice est conservée et l'intérieur du bâtiment est entièrement rénové avec de matériaux de grande qualité.
Les appartements donnent sur la place Saint Aaron, avec une vue dégagée sur la cathédrale et l'intramuros : de jour comme de nuit, les vues sont magnifiées pour les amoureux des belles pierres.
Chauffage par le plafond, carrelage PORCELANOSA, Parquet bois contrecollé, espaces communs décorés par La Maison Générale, Grand local vélo équipé de prises électriques : tout est pensé pour votre confort.
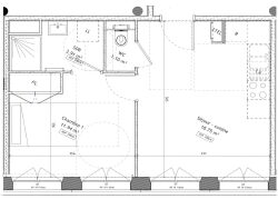
Joli T2au 1er étage, chambre et séjour donnant sur la cathédrale. calme. ascenseur. wc séparés.salle d'eau avec douche à l'italienne. Plan intérieur personnalisable.
Frais de notaire Classique.
Nous Consulter.
Honoraires à la charge du vendeur. Non soumis au DPE. Les informations sur les risques auxquels ce bien est exposé sont disponibles sur le site Géorisques : georisques.gouv.fr.
Votre conseiller MON BIEN A LA MER : Gérant - .fr MON BIEN A LA MER Carte T CPI 2201 2018 000 025 040 RCP ACM IARD B1 7025278
35.69 m²
9 218 €
2
1
1
1
1 sur 3
Contact mon bien à la mer
Contacter gratuitement à l'aide du formulaire ci-dessous.