L'agence 'MON BIEN A LA MER', spécialiste de l'immobilier neuf sur les côtes Bretonnes, vous présente :
Coeur de ville : nouvelle résidence de standing en construction à 100m de la Place du Général de Gaulle, : Commerces et bus à pied, plage de BINIC 5 min en voiture, gare TGV ST BRIEUC 12 min en voiture.
Résidence RE2020 organisée en 4 petits îlots avec jardin intérieur, parking sous sol, sécurisée. Chauffage par pompe à chaleur, parquet stratifié berry alloc, volets roulants électriques, douches à l'italienne, local vélo. Appartements entièrement finis et équipés (sauf cuisine).
Livraison 4è trimestre 2026, travaux en cours, visitable. Ascenseur. Frais de notaire réduits.
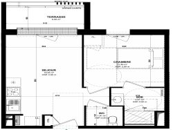
Petit 2T fonctionnel côté cour de 37,4m2 comprenant : - séjour 20m2 donnant sur balcon 5m2, - Chambre 11,35m2, - Salle d'eau douche à l'italienne, wc séparés - Parking inclus.
Nous Consulter.
Honoraires à la charge du vendeur. Non soumis au DPE. Les informations sur les risques auxquels ce bien est exposé sont disponibles sur le site Géorisques : georisques.gouv.fr.
Votre conseiller MON BIEN A LA MER : Gérant - .fr MON BIEN A LA MER Carte T CPI 2201 2018 000 025 040 RCP ACM IARD B1 7025278
37.4 m²
4 519 €
20 m²
2
1
1
1 (séparé)
1 sur 3
Oui
1
1
Contact mon bien à la mer
Contacter gratuitement à l'aide du formulaire ci-dessous.