APPARTEMENT T3 - DERNIER ÉTAGE AVEC TERRASSE ET PARKING
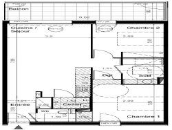
Découvrez ce charmant appartement T3 de 65m², situé au dernier étage d'une petite copropriété de 10 lots avec ascenceur et à l'architecture élégante. Profitez d'une terrasse de 12m² offrant un espace de vie extérieur agréable, intime et avec vue dégagée. Idéalement placé à proximité immédiate des commerces et au pied du tramway, cet appartement vous garantit un quotidien pratique et bien connecté. Ce bien se démarque par ses prestations de qualité, telles qu'un ascenseur, WC suspendu, volets électriques, ainsi qu'un agencement pensé avec soin. Inclus également, une place de parking sécurisée proposée à 10 000 en supplément, obligatoire. Profitez d'un financement avantageux grâce à l'éligibilité au Prêt à Taux Zéro (PTZ), à une TVA réduite (sous conditions), et à des frais de notaire réduits. Le prix de vente est fixé à 265 000 (hors parking). Je suis à votre disposition pour fournir plus de détails ou organiser une visite. N'hésitez pas à me contacter pour ne pas rater cette opportunité d'exception.
Visuel non contractuel suggestions d'aménagement
Honoraires à la charge du vendeur. Dans une copropriété de 10 lots. Aucune procédure n'est en cours. DPE en cours. Les informations sur les risques auxquels ce bien est exposé sont disponibles sur le site Géorisques : georisques.gouv.fr.