APPARTEMENT TRAVERSANT T3 - DERNIER ÉTAGE AVEC TERRASSE ET PARKING
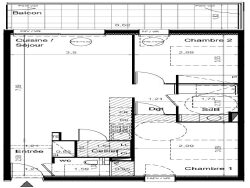
Découvrez cet appartement T3 de 65 m² avec terrasse, situé au dernier étage d'une résidence à taille humaine de seulement 10 lots, avec ascenseur et à l'architecture élégante. Idéalement placé à proximité immédiate des commerces et au pied du tramway, cet appartement vous garantit un quotidien pratique et bien connecté.
Sa partie vie se compose d'une pièce de vie avec cellier, prolongée par une terrasse. Sa partie nuit comprend deux chambres et une salle de bain. Ce bien se démarque par ses prestations de qualité, telles qu'un ascenseur, un WC suspendu, des volets électriques, ainsi qu'un agencement pensé avec soin.
Une place de parking sécurisée est également incluse en sus obligatoire (10 000 ).
Je suis à votre disposition pour fournir plus de détails ou organiser une visite.N'hésitez pas à me contacter pour ne pas rater cette opportunité.
- Prix TVA 5,5% avec parkings : 275 179 - Prix TVA 20% avec parkings: 313 000 - Frais de Notaires Réduits - Garanties - RT 2012 - ...
Visuel non contractuel suggestion d'aménagement.
APPARTEMENT TRAVERSANT T3 - DERNIER ÉTAGE AVEC TERRASSE ET PARKING
Honoraires à la charge du vendeur. Dans une copropriété de 10 lots. Aucune procédure n'est en cours. DPE en cours. Les informations sur les risques auxquels ce bien est exposé sont disponibles sur le site Géorisques : georisques.gouv.fr.