APPARTEMENT T3 TRAVERSANT - DERNIER ÉTAGE AVEC TERRASSE ET PARKING
Découvrez cet appartement T3 traversant de 65 m², idéalement situé au dernier étage d'une résidence intimiste et élégante de seulement 10 lots (avec ascenseur). Au pied du tramway et à proximité immédiate des commerces, il vous garantit un quotidien pratique et parfaitement connecté.
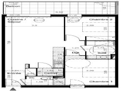
Côté jour, il se compose d'une entrée avec placard, d'un cellier et d'un WC indépendant. La pièce de vie s'ouvre sur une belle terrasse de 12 m² sans vis-à-vis, idéale pour profiter des beaux jours en toute tranquillité. Côté nuit, vous profiterez de deux chambres confortables et d'une salle de bain.
L'appartement se démarque par un agencement pensé avec soin et des prestations de qualité (volets roulants électriques, WC suspendus). Une place de parking privative et sécurisée vient compléter ce bien.
Atouts et conditions financières (Logement Neuf) : Prix en TVA réduite à 5,5 % (sous conditions) : 275 179 (parking inclus) Prix en TVA classique à 20 % : 313 000 (parking inclus) Frais de notaire réduits Hautes performances énergétiques (Norme RT 2012) Garanties constructeur incluses (biennale, décennale...) Je suis à votre entière disposition pour vous fournir plus de détails ou organiser une visite.
Visuel non contractuel suggestion d'aménagement.
Honoraires à la charge du vendeur. Dans une copropriété de 10 lots. Aucune procédure n'est en cours. DPE en cours. Les informations sur les risques auxquels ce bien est exposé sont disponibles sur le site Géorisques : georisques.gouv.fr.