Place du Capitaine Dreyfus - Local de 130 m2 - 2 Parkings
Colmar 68000
0
La part des honoraires pour la réalisation de létat des lieux de ce bien est de 1200 euros.
COLMAR, Place du Capitaine Dreyfus Proche Gare et Centre Ville
Dans un complexe de locaux professionnels entièrement rénové Alliant modernité, accessibilité (ERP et PMR), et équipements
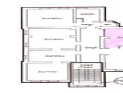
Au premier étage avec ascenseur Local d'environ 130 m2 divisé comme suite :
- Entrée / salle d'attente de 21 m2 desservant les différents bureaux - Quatre bureaux de 17 m2, 21 m2, 25 m2 et 29 m2 équipés de placards - Cuisine aménagée avec ameublement - Toilette indépendant avec point d'eau
- Chauffage collectif par clim réversible (chaud / froid) inclus dans les charges -
Deux places de parking privatives complètent le lot + parking public à proximité