Honoraires à la charge de l'acquéreur (Prix hors honoraires : 243000 euros).
Les charges de location sont prévisionnelles mensuelles avec régularisation annuelle.
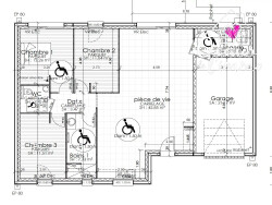
Plain pied PMR : 3 chambres + garage de 2023/2024
A 10/12 minutes de la Roche Sur Yon; découvrez ce plain pied de 2023-2024 en lotissement : 3 chambres + garage; sur un terrain plat de 310m2.
JARDIN PLEIN SUD
EXCLUSIVITE AGENCE :
La maison est composée d'une pièce de vie traversante de 46 m2 ( orientée plein SUD ) avec une cuisine équipée et aménagée , offrant de beaux espaces salon et séjour; coté nuit : un dégagement dessert 3 chambres ; une belle salle d'eau ( grande douche + vasque ), un wc séparé indépendant, une lingerie et un garage intégré de 21 m2.
en extérieur : une terrasse béton , un terrain plat prêt à aménager.
DPE A/A
Maison à la nome RE 2020( dpe = A !!!!), maison chauffée par une pompe à chaleur-arothermie ( air/eau ) , offrant une économie d'énergie pour le chauffage et la production d'eau chaude sanitaires.
EXCLUSIVITE AGENCE
habitable : 100,3 m2. garage intégré : 21,1 m2. pour 1 véhicule + du rangement libre. d'occupation : oui DPE A/A terrain plat; frais de notaire : standard ( soit 8 ou 8,5% suivant profil ) assainissement tout à l égout : oui (vendue avec contrôle /conformité assainissement ) eu et ep séparatifs fibre optique : raccordable : oui garanties décennales : oui
Information d'affichage énergétique sur ce bien : classe ENERGIE A indice 32 et classe CLIMAT A indice 1.
Prix honoraires inclus soit 3.70 % et à la charge de l acquéreur Prix net vendeur : 243 000.00e Honoraire d'agence : 9000,00e ttc Soit 252 000 e fai
frais de notaire standard ( soit +/- 8% à 8,5% suivnat profils)
Les informations sur les risques auxquels ce bien est exposé sont disponibles sur le site Géorisques : georisques.gouv.fr
Contactez l'Agence « Ô Coeur de l'immo » Tél : 07/86/78/57/27 , Mail : / jcr@ /-
La présente annonce immobilière a été rédigée sous la responsabilité éditoriale d'Agent Commercial immatriculé au Registre Spécial des Agents Commerciaux du Tribunal de Commerce de ANGERS sous le numéro 633 203 169 EI, pour le compte de l'Agence Ô Coeur de l'immo. Prix honoraires inclus et à la charge de l'acquéreur Référence annonce : 01827JCR
Honoraires inclus de 3.7% TTC à la charge de l'acquéreur. Prix hors honoraires 243 000 . Classe énergie A, Classe climat A Montant estimé des dépenses annuelles d'énergie pour un usage standard : entre 390.00 et 580.00 sur les années 2021, 2022 et 2023 (abonnements compris). Les informations sur les risques auxquels ce bien est exposé sont disponibles sur le site Géorisques : georisques.gouv.fr.
100 m²
2 520 €
310 m²
5
3
1
1
3.7 %
13/02/2026
2024
Sud
1
Consommations énergétiques
Logement économe
32
Logement énergivore (kWhEP/m2/an)
Émissions de gaz à effet de serre
Faible émission de GES
1
Forte émission de GES(kgeqCO2/m2/an)
Contact Denis PETIT
Contacter gratuitement à l'aide du formulaire ci-dessous.