Dans le 7 -ème arrondissement Lyonnais / Secteur Gerland
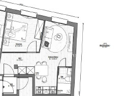
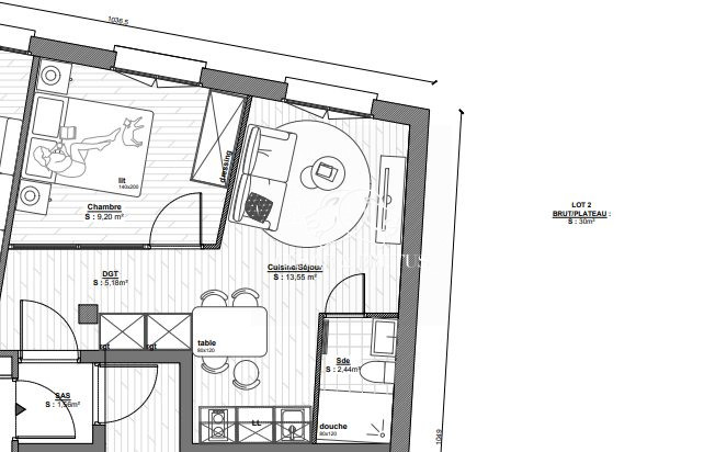
À vendre Plateau brut à aménager (env. 28 m²) avec terrasse ( env. 15 m²)
Découvrez ce plateau d'environ 28 m², avec sa terrasse privative d'environ 15 m², une véritable page blanche pour imaginer et créer votre futur chez-vous familial.
Situé dans une petite copropriété, à taille humaine et conviviale, ce bien rare offre la possibilité d'aménager chaque espace selon vos besoins et votre style de vie.
Une opportunité unique de concevoir un lieu chaleureux et accueillant, pensé pour vous et vos proches.
Idéalement situé, proche de toutes les commodités, parfaitement desservi par les transports et à proximité de nombreuses écoles et des commerces.
Contactez-nous dès aujourd'hui pour organiser une visite et découvrir par vous-même tout ce que cet appartement a à offrir.
N'hésitez plus : soyez le premier à le visiter ! Contactez-moi : Maxence MALLARME 06/27/75/55/81 maxence.mallarme@cesaretbrutus.com Agent commercial RSAC : 841 058 662 / EI
Référence : MM-7937
Honoraires à la charge du vendeur. Dans une copropriété de 15 lots. Aucune procédure n'est en cours. DPE vierge. Les informations sur les risques auxquels ce bien est exposé sont disponibles sur le site Géorisques : georisques.gouv.fr.