Plateau complet de bureaux avec espace sanitaires à un tel p
Schiltigheim 67300
0
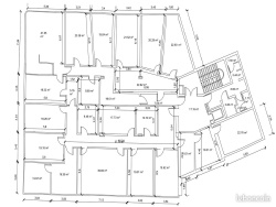
Non vous ne rêvez pas ! 676EUR le m2 avec 15 parkings frais d'agence inclus ! Les bureaux sont en très bon état général, c'est l'affaire du siècle. Au 2ème et dernier étage avec ascenseur d'un immeuble industriel et de bureaux des années 1980 avec une vingtaine de lots, rue du Château d'Angleterre à Schiltigheim, dans le quartier de La Vogelau à côté du plan d'eau de La Ballastière avec toutes les commodités possibles et imaginables. Les bureaux donnent en plein sur la route passante des Trois Maires ce qui peut être utile pour se faire connaitre avec des affiches. 507,40m2 loi Carrez plus 38,39m2 de jouissance exclusive d'une partie commune de WC et sanitaires. Actuellement il y a 21 pièces. L'ensemble se trouve sur un même plateau il n'y a pas besoin de passer son temps à gravir des escaliers. La vente d'un ensemble plus petit divisé avec par exemple 90m2 + 420m2 ou 226m2+ 281m2 est possible. Il n'y a aucun travaux à prévoir les bureaux peuvent être utilisés de suite. Ils sont vraiment très agréables, lumineux avec une belle hauteur de plafond et des vues dégagées. Une climatisation réversible agrémente l'ensemble. Les charges de copropriété sont seulement de 320EUR par mois ce qui compense avce la taxe foncière élevée. 15 parkings privatifs confortables dans la propriété grillagée sont inclus dans la vente. Le prix de vente est exprimé honoraires inclus à la charge du vendeur. Un projet d'aménagement tout récent vient d'être élaboré et pourrait être mis en oeuvre par l'acquéreur. Les informations sur les risques auxquels ce bien est exposé sont disponibles sur le site Géorisques : www.georisques.gouv.fr
546 m²
676 €
320 € / mois
Oui
Contact Federal Immobilier
Contacter gratuitement à l'aide du formulaire ci-dessous.