Les charges de location sont prévisionnelles mensuelles avec régularisation annuelle.
Je vous propose en exclusivité cette propriété, composée :
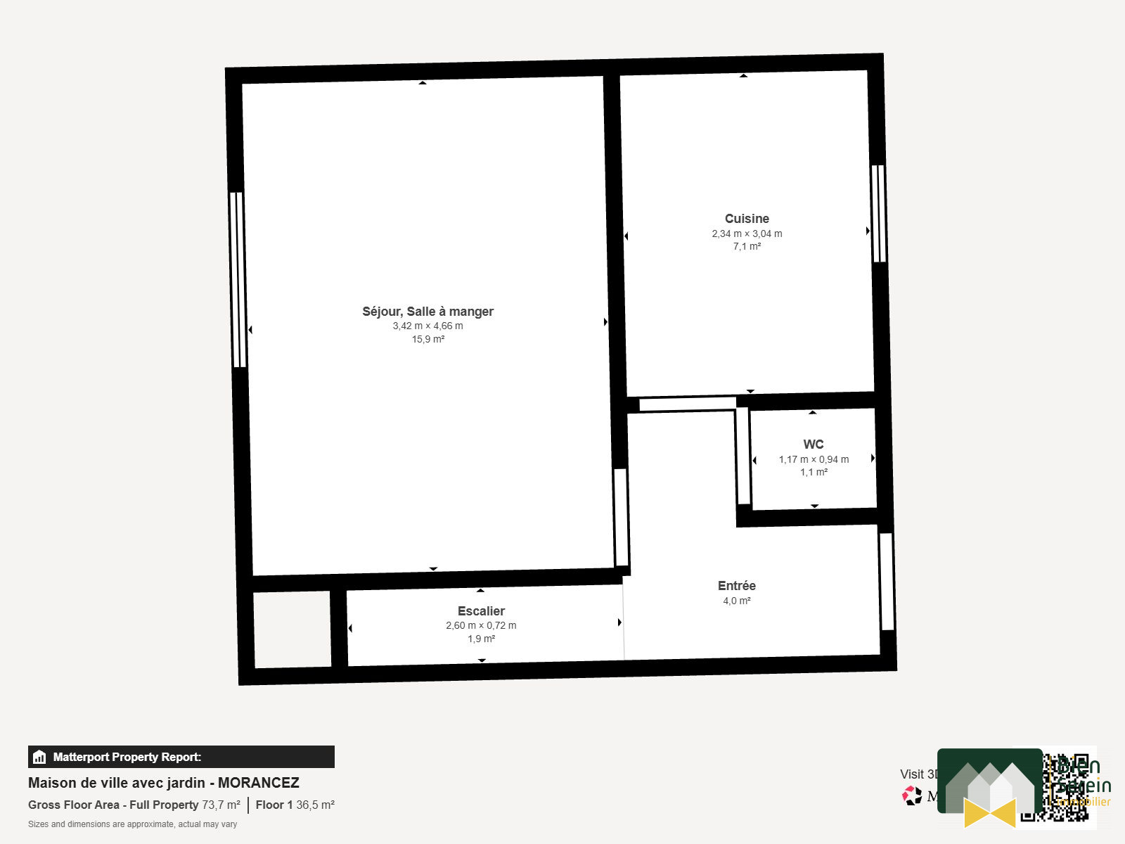
-Maison principale d'habitation de 89m2 comprenant une entrée avec placards, cuisine aménagée séparée, séjour avec poêle à bois, séjour, w.c avec coin buanderie, salle de bains. A l'étage un palier de dégagement distribue deux chambres, un grand placard. Un grenier au-dessus pouvant être aménagé et, pour l'instant accessible de l'extérieur.
Dans la cour :
-Une grange avec grenier au-dessus. -Une dépendance (ancien bûcher),
Possibilité d'y stationner au moins deux véhicules Du potentiel!
Honoraires à la charge du vendeur. Classe énergie E, Classe climat B Montant estimé des dépenses annuelles d'énergie pour un usage standard : entre 1940.00 et 2690.00 sur les années 2021, 2022 et 2023 (abonnements compris). Les informations sur les risques auxquels ce bien est exposé sont disponibles sur le site Géorisques : georisques.gouv.fr.
Votre conseiller We Invest France : Corinne OLIVIER Agent commercial (Entreprise individuelle) RSAC 522 648 310 EVRY
89 m²
1 854 €
4
2
1
1
Consommations énergétiques
Logement économe
315
Logement énergivore (kWhEP/m2/an)
Émissions de gaz à effet de serre
Faible émission de GES
10
Forte émission de GES(kgeqCO2/m2/an)
Contact Corinne OLIVIER
Contacter gratuitement à l'aide du formulaire ci-dessous.