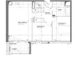
PLEURTUIT - Appartement 3 pièces de 61.41m² Ouest - 1er étage - ascenseur - stationnements en sous-sol sécurisé. A Pleurtuit, idéalement situé dans un quartier résidentiel, à proximité immédiate du centre-ville, des commerces, des commodités et des transports, cet appartement de 61,41 m² se situe au 1er étage d'une résidence moderne avec ascenseur. Baigné de lumière grâce à son exposition Ouest, il se compose d'une entrée avec dégagement, d'un séjour lumineux avec cuisine ouverte, donnant accès à une loggia de 5,71 m². L'espace nuit comprend deux chambres dont une avec placard, une salle de bains avec emplacement lave-linge et wc indépendant. Deux stationnements privatifs complètent ce bien. Prix promoteur - frais de notaire réduits - Les informations sur les risques auxquels ce bien est exposé sont disponibles sur le site Géorisques : www.georisques.gouv.fr. Photos non contractuelles - Suggestions d'aménagements Copropriété de 37 lots - dont 37 lots habitation. (Pas de procédure en cours). Charges annuelles : 878 euros.