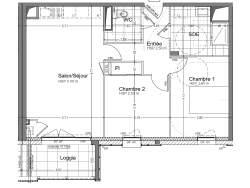
PLEURTUIT - Appartement 3 pièces de 61.51m² Ouest - 2ème étage - ascenseur - stationnements Idéalement situé dans un quartier pavillonnaire de Pleurtuit, à proximité immédiate du centre-ville, des commerces, des commodités et des transports, cet élégant appartement de 61,51 m² se trouve au 2ème étage d'une résidence contemporaine avec ascenseur. Baigné de lumière grâce à son exposition Ouest, il se compose d'une entrée avec dégagement, d'un séjour lumineux avec cuisine ouverte, donnant accès à une agréable loggia de 5,71 m². L'espace nuit comprend deux chambres, une salle d'eau et des toilettes indépendantes. Deux stationnements privatifs complètent ce bien. Prix promoteur - frais de notaire réduits - Les informations sur les risques auxquels ce bien est exposé sont disponibles sur le site Géorisques : www.georisques.gouv.fr. Photos non contractuelles - Suggestions d'aménagements Copropriété de 37 lots - dont 37 lots habitation. (Pas de procédure en cours). Charges annuelles : 878 euros.