Sur la commune très prisée de Meyreuil, à proximité immédiate d'Aix-en-Provence, découvrez ce magnifique projet de villa contemporaine implanté sur un terrain de 781 m², dans un environnement calme et résidentiel.
? Le projet
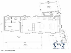
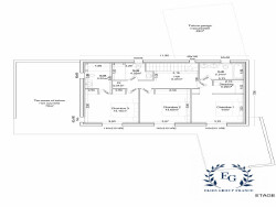
Cette villa aux prestations haut de gamme développera une surface habitable de 175 m², pensée pour offrir confort, intimité et volumes généreux. Superbe pièce de vie de 67 m², lumineuse, avec de larges baies vitrées 4 chambres d'environ 14 m² chacune Toutes disposent de leur salle d'eau privative avec WC 2 chambres avec dressing indépendant Organisation idéale pour une vie de famille ou réception d'invités Cellier, buanderie, rangements optimisés Carport et stationnements privatifs Grand balcon de 70m² avec garde au corps en verre ? Extérieurs:Grande terrasse de 87 m² Piscine à débordement de 30 m² Pool house de 19 m² avec WC Terrain plat, bien exposé, parfaitement intégré au projet ? EmplacementCommune recherchée de Meyreuil Proximité immédiate d'Aix-en-Provence Accès rapide aux axes routiers Cadre résidentiel et environnement privilégié ? Les + du projetArchitecture contemporaine élégante Prestations de standing Projet clé en main (terrain + construction) Fonctionnement idéal pour résidence principale ou projet patrimonial Projet personnalisable selon vos besoins Le permis est obtenu et purgé. Possibilité de rajouter un sous sol d'environ 100m² pour garçonnière, salle de sport, cave a vin, cinéma ect ...
? Dossier complet, plans et informations sur demande ? Disponible pour étude du projet et accompagnement personnalisé.
Honoraires à la charge du vendeur. Non soumis au DPE. Les informations sur les risques auxquels ce bien est exposé sont disponibles sur le site Géorisques : georisques.gouv.fr.
Votre conseiller ELIOS GROUP IMMOBILIER : Fabien CELIK Agent commercial (Entreprise individuelle) RSAC 920 337 086. Les informations sur les risques auxquels ce bien est exposé sont disponibles sur le site Géorisques : www.georisques.gouv.fr
Maison contemporaine
175 m²
5 257 €
70 m²
68 m²
781 m²
10
4
1
3
6
21/01/2026
2026
Sud
1 (70 m²)
1
1
Oui
Contact Fabien CELIK
Contacter gratuitement à l'aide du formulaire ci-dessous.